




Pièces
2 pièces
Chambres
1 chambre
Surface
41 m²
Ascenseur
Oui
Parking
Oui
Terrasse
Oui
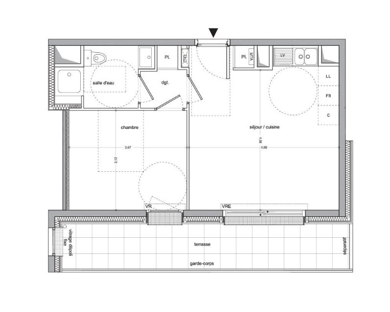
Loyer : 620 € par mois charges comprises charges comprises dont - 84 € par mois de provision pour charges - régularisation annuelle Dépôt de garantie : 536 € Honoraires charge locataire : 540 € Ttc Nantes Route De Saint Jospeh Appartement type 2, Venez découvrir ce bien situé dans une copropriété récente de 2020, offrant 41,6 m2 habitables. Bénéficiant d'un agencement à la fois pratique et agréable, il se trouve à proximité immédiate des commerces et des transports.Il se compose d'une cuisine ouverte sur le séjour donnant accès à une terrasse d'environ 12m2, d'une chambre, d'un dégagment avec placards intégrés ainsi que d'une salle d'eau équipée d'une douche et d'un WC.En annexe, vous bénéficierez d'une place de stationnement en sous-sol.L'eau chaude, l'eau froide et le chauffage sont compris dans les charges !Eligibilité Pinel !Disponible dès maintenant ! Loyer : 620 Eur Cc Prov sur charges/mois : 84 Eur avec régularisation annuelle Dépôt garantie : 536 Eur Honoraire 540 Eur Ttc à la charge du locataire dont 124Eur pour état des lieux. Les informations sur les risques auxquels ce bien est exposé sont disponibles sur le site Géorisques:
Source
Fnaim
Publié le
18 décembre 2025
Vue pour la dernière fois
il y a 8 heures