




Pièces
2 pièces
Chambres
1 chambre
Salles de bain
1
Surface
47 m²
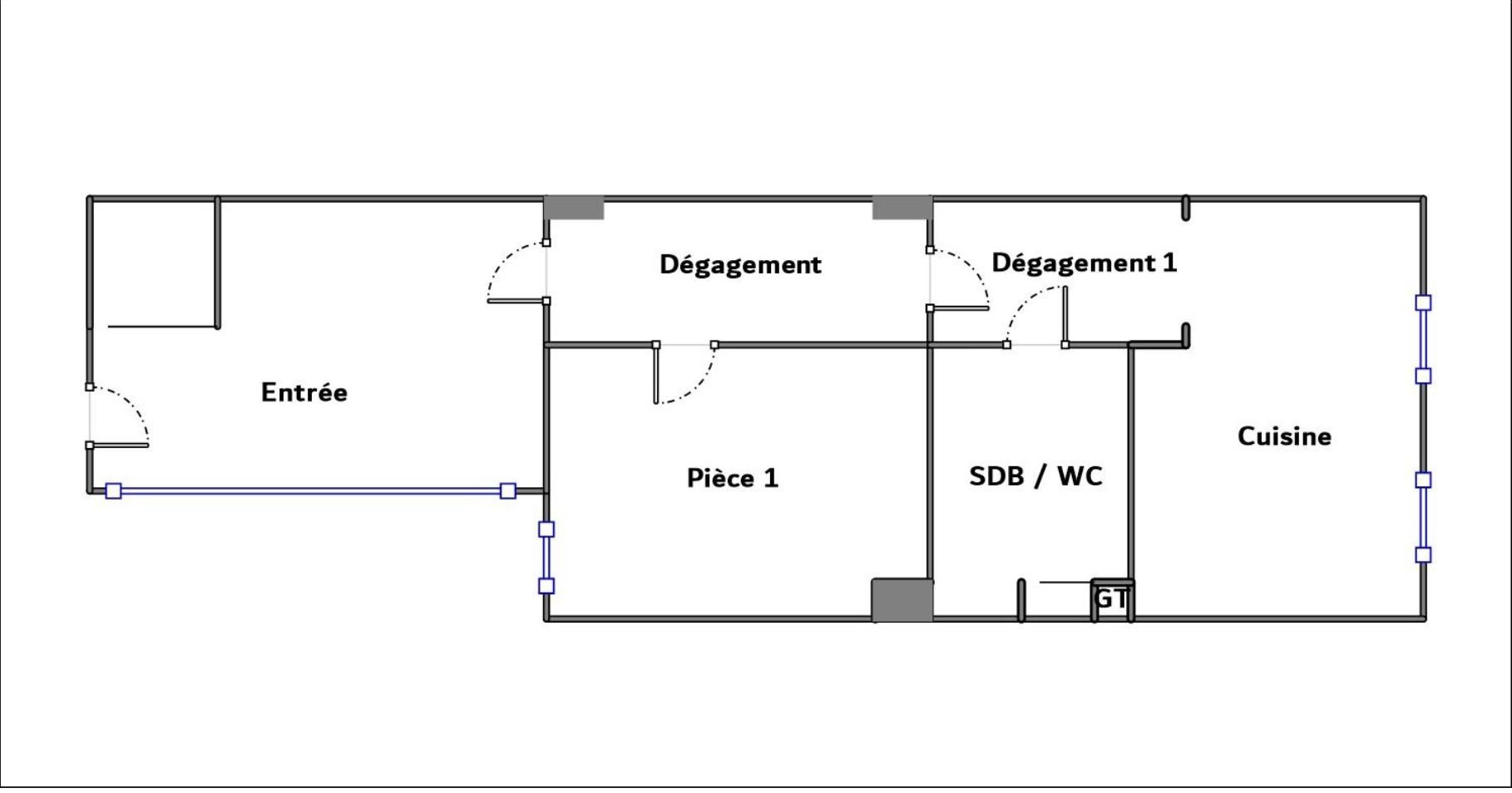
Loyer : 710 € par mois charges comprises Loyer de base : 630 € - 80 € par mois de provision pour charges - régularisation annuelle Dépôt de garantie : 630 € Honoraires charge locataire : 611 € Ttc dont - 141 € Ttc pour état des lieux Bintz Immobilier vous propose à la location ce grand 2 pièces de 47m2 situé au 2ème étage sans ascenseur dans un immeuble situé dans l'hypocentre de Strasbourg.Il est composé d'une entrée, un séjour, une chambre, une cuisine ouverte avec petit frigo et plaque de cuisson, et une salle de bains avec WC.N'hésitez pas à nous afin de programmer une visite.Honoraires de 611,26 ? Ttc à la charge du locataire comprenant 141,06 ? Ttc pour l'état des lieux. Loyer de base 630.00 ?/mois. Provision sur charges 80 ?/mois, régularisation annuelle. Dépôt de garantie 630 ?. Classe énergie D, Classe climat B Montant estimé des dépenses annuelles d'énergie pour un usage standard : entre 970.00 ? et 1370.00 ? sur les années 2021, 2022 et 2023 (abonnements compris). Les informations sur les risques auxquels ce bien est exposé sont disponibles sur le site Géorisques : .
Source
Fnaim
Publié le
29 janvier 2026
Vue pour la dernière fois
il y a 8 heures