




Pièces
2 pièces
Surface
46 m²
Consommation énergétique
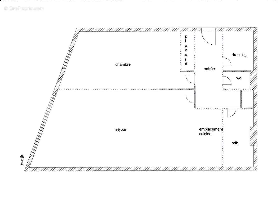
Situé face au Parc Montsouris dans le 14e arrondissement, bel appartement 2 pièces de 46 m2, ensoleillé avec vue arborée. Dans un très bel immeuble moderne, l’appartement comprend : entrée, séjour de 22 m2, une chambre, salle de bains, Wc séparés, dressing et nombreux rangements. Cuisine à installer, Accès Pmr. Emplacement idéal pour une profession libérale ou un couple cherchant calme et proximité des transports : Rer B (Cité Universitaire) à 5 minutes, Tram T3 à 3 minutes, métro Porte d’Orléans (ligne 4) à 8 minutes. Rue Nansouty.
Source
Fnaim
Publié le
22 septembre 2025
Vue pour la dernière fois
il y a 16 heures