



Pièces
4 pièces
Chambres
3 chambres
Surface
87 m²
Ascenseur
Oui
Parking
Oui
Terrasse
Oui
Cave
Oui
Piscine
Oui
Consommation énergétique
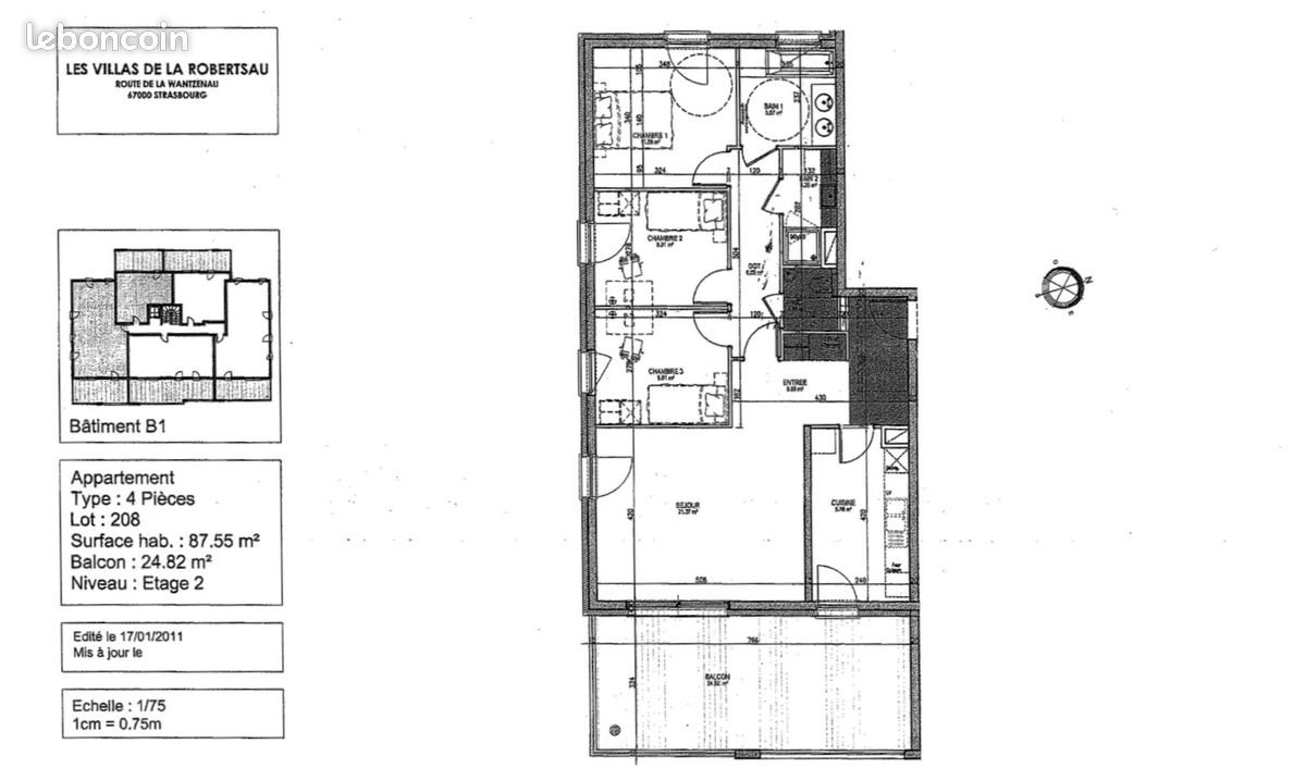
Appartement 4 pièces avec prestations haut de gamme superbement situé dans la résidence Les Villas de la Robertsau, route de la Wantzenau à Strasbourg. Il est situé au 2ème étage avec ascenseur dans un cadre unique au bord de l'eau et de la forêt. La surface de l'appartement est de 87,5m2 plus une belle terrasse en bois de 24,8m2 avec vue sur la forêt et cours d’eau. Environnent très agréable dans un grand parc avec une belle piscine à disposition des résidents. Il comprend une entrée, un séjour, une belle cuisine fermée, un salon, trois chambres, une salle d’eau, une belle salle de bains et un Wc séparé. Haut niveau de sécurité (volets roulants électriques, porte blindée, vidéophone, digicode). Annexes : une cave et un très grand parking double, local vélos. Loyer 1 250€ + av.charges 250€ (comprenant chauffage, eau chaude, poubelles, entretien des communs, parc et piscine compris dans les charges).
Source
Leboncoin
Publié le
26 janvier 2026
Vue pour la dernière fois
il y a 17 heures