



Pièces
3 pièces
Chambres
2 chambres
Surface
60 m²
Ascenseur
Oui
Parking
Oui
Terrasse
Oui
Consommation énergétique
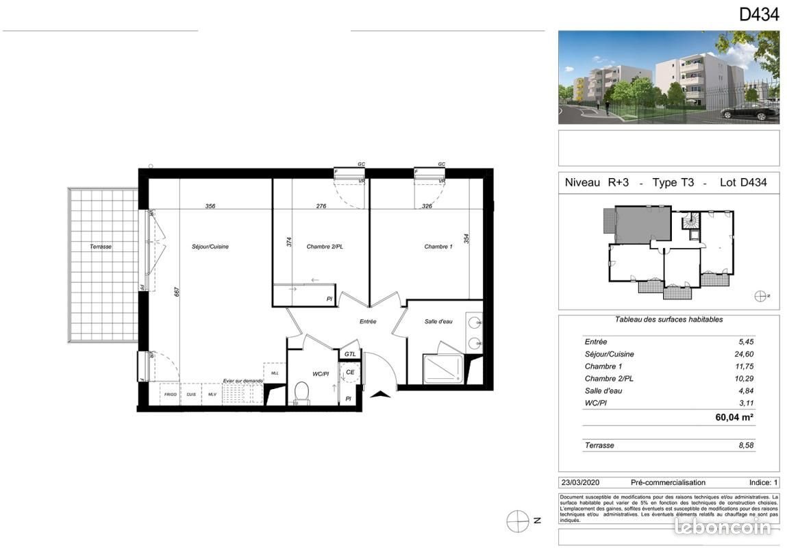
Appartement T3 A Perpignan dans la résidence Domaine Mas Rous - Le Chenanson, nous vous proposons un appartement T3 (D434) de 60 m² avec une terrasse de 8 m², comprenant une entrée, un séjour-cuisine, deux chambres dont une avec placard, une salle d'eau et un Wc séparé. Deux parkings n°89 et 90. Eau chaude et chauffage (individuel). Entretien parties communes, entretien ascenseur et espaces verts communs, compris dans les provisions sur charges mensuelles et donnant lieu à une régularisation annuelle. Les honoraires de location Ttc (à la charge du locataire) incluent le montant de rédaction des états des lieux facturé pour 180euros Ttc, après réalisation lors de l'entrée dans les lieux. Disponible immédiatement. Pour plus de détails sur ce logement, vous pouvez consulter la fiche descriptive de ce bien, sur votre site internet Afedim. Les informations sur les risques auxquels ce bien est exposé sont disponibles sur le site Géorisques : Référence annonce : Date de réalisation du diagnostic : Honoraires à la charge du locataire : 660 € Ttc Dépôt de garantie : 654 € Montant des charges : 70 € / mois Montant estimé des dépenses annuelles d'énergie pour un usage standard : entre 37 € et 50 € par an. Prix moyens des énergies indexés sur l'année 2021 (abonnements compris)
Source
Leboncoin
Publié le
30 janvier 2026
Vue pour la dernière fois
il y a 10 heures