



Pièces
2 pièces
Chambres
1 chambre
Surface
39 m²
Ascenseur
Oui
Parking
Oui
Terrasse
Oui
Cave
Oui
Consommation énergétique
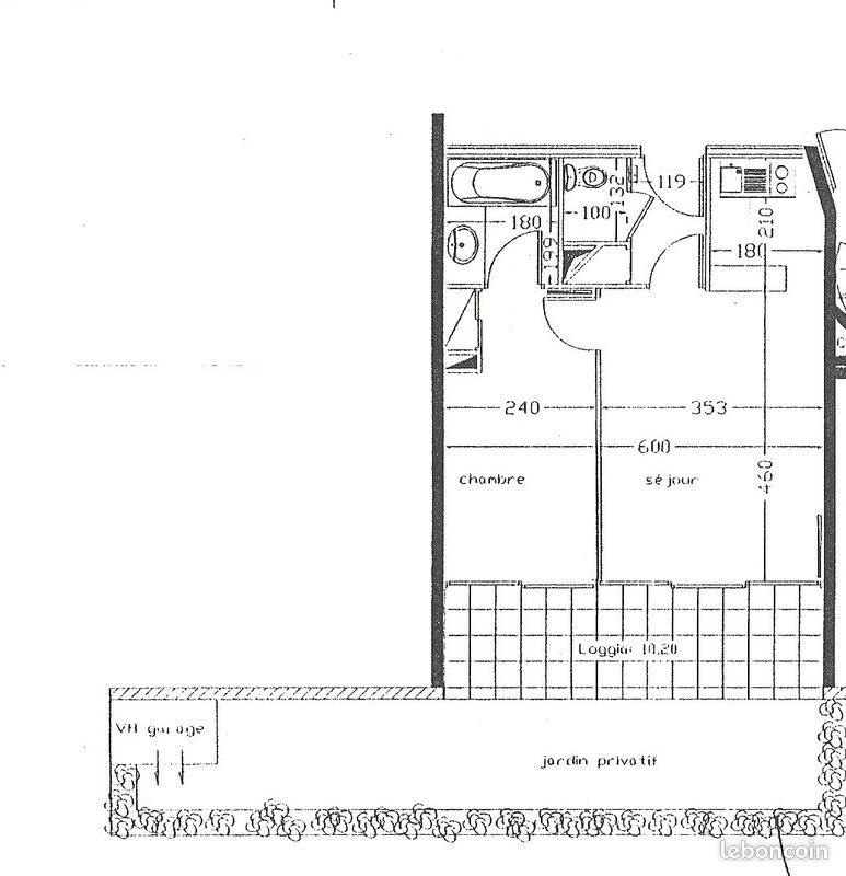
Disponible à la location le 1er janvier 2026. Appartement T2 de 39m² situé dans une résidence de standing rue Jules Noriac à Limoges, à proximité immédiate de la préfecture, place Denis Dussoubs, Rue Jean Jaurès, Centre St Martial, Fnac etc Ce très agréable appartement T2 est exposé au sud, au calme, bien isolé , situé en rez de jardin sécurisé avec loggia et jardin clos privé, le tout orienté sur square intérieur de la résidence sans passage ni vis à vis direct (accès au square réservé à l'entretien). Loggia (10m²) + jardin privatif (17m²) soit un espace privatif extérieur de 27m² . Il se compose de : - une entrée avec placard donnant sur - séjour avec espace cuisine équipé (meubles hauts et bas, réfrigérateur, plaque de cuisson hotte, meuble bar de séparation), baie vitrée sur loggia - 1chambre avec placard et baie vitrée sur loggia - salle de bains - Wc Chauffage et eau chaude par chaudière individuelle gaz, ascenseur,volets roulants électriques, accès sécurisé Cave au Rdc 1 Emplacement de Parking en sous-sol (possibilité abonnement pour prise véhicule électrique dans parking). Loyer + charges : 499 dont environ 60 € de provision sur charges. Je souhaite un premier contact exclusivement par messagerie s'il vous plaît, en précisant votre profil détaillé. Le bon coin vous permet d’en compléter un (Identité, emploi ou étudiant ou autre à préciser, revenus dont revenu fiscal de référence à relever sur avis d’imposition 2024 et 2025, possibilité garant, composition du foyer, numéro de téléphone, email etc). Je ne répondrai pas aux demandes sans profil. Annonce Visible = Appartement Disponible
Source
Leboncoin
Publié le
23 novembre 2025
Vue pour la dernière fois
il y a 23 heures