




Pièces
5 pièces
Chambres
4 chambres
Salles de bain
3
Surface
165 m²
Terrasse
Oui
Piscine
Oui
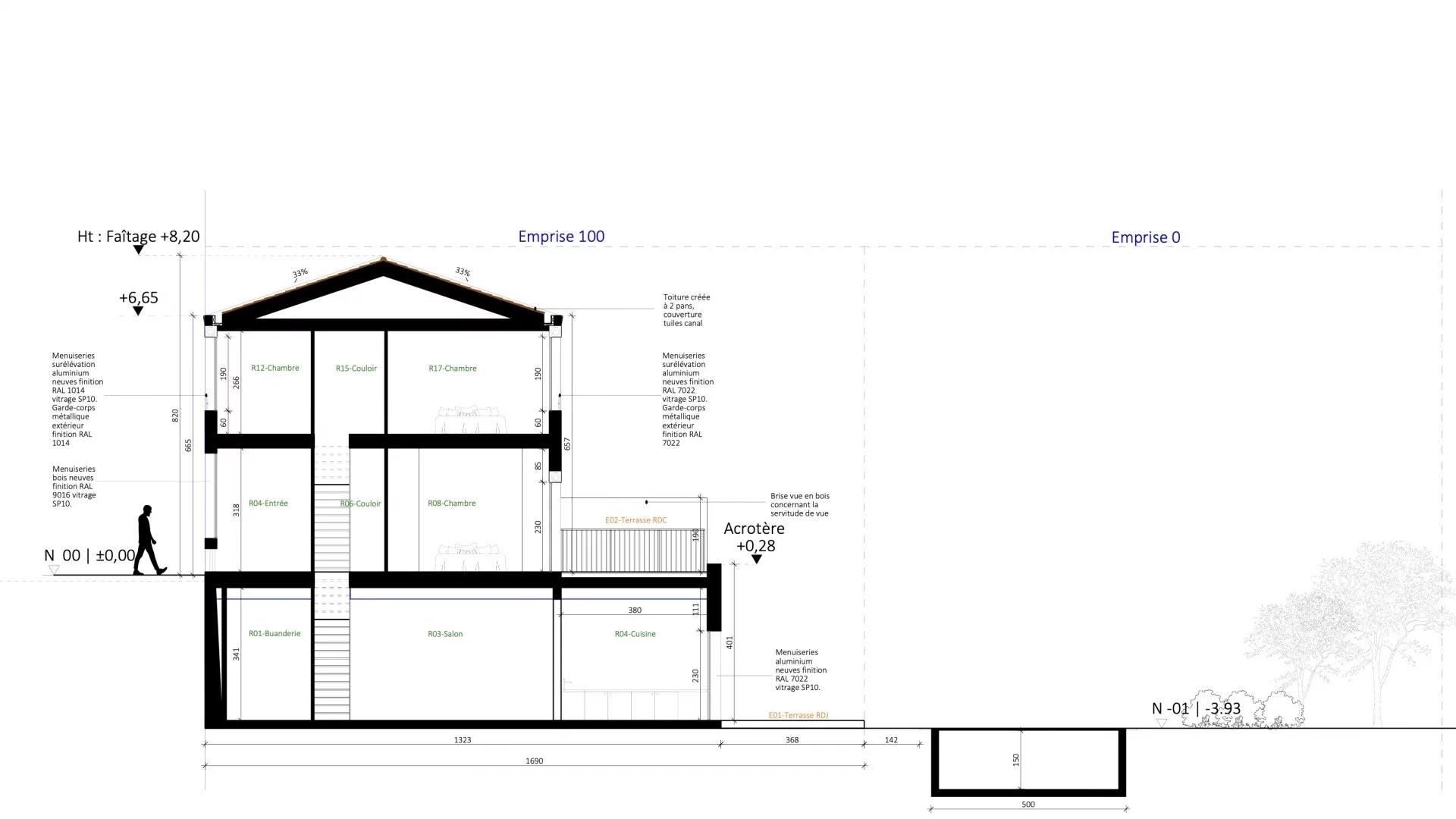
Maison de 170m2 avec jardin et piscine comprenant 4 chambres et un bureau, à construire sur une parcelle de 220m2 au coeur de Saint-Seurin. Suite parentale en Rdc avec terrasse sur le jardin, 3 autres chambres et un bureau. Etablissements scolaires réputés non loin, commerces et transports. Le permis de construire a été accordé et purgé de tout recours et les plans d'architecte sont disponibles, le projet prêt à être mis en oeuvre. Plans et permis de construire sont disponibles pour consultation sur demande. Prix de vente hors honoraires 3%Ttc à la charge de l'acquéreur: 534 000 euros
Source
Lux-Résidences
Publié le
3 août 2025
Vue pour la dernière fois
il y a 12 heures