
Pièces
8 pièces
Surface
196 m²
Consommation énergétique
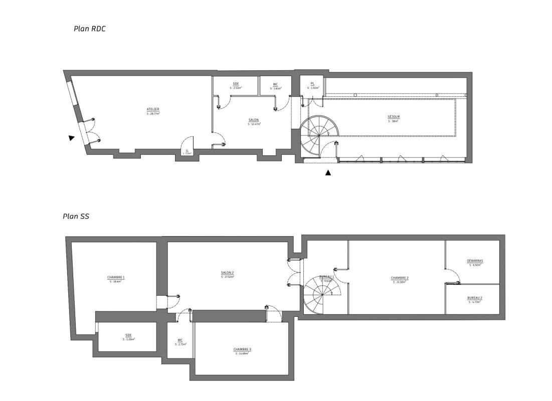
Loft À Usage MIXTE Nous vous proposons cet ensemble de trois lots réunis totalisant 196m2 au sol / 185,09m2 Carrez partagés comme suit: 81,68m2 en rez-de-chaussée et 103,41m2 en souplex offrant de nombreuses possibilités d'aménagement selon votre projet. Idéalement bien situé au coeur du 11ème arrondissement, dans la très prisée rue de la Folie-Méricourt, ce bien bénéficie de deux entrées distinctes: l'une sur la rue et l'autre au calme d'une jolie cour pavée et végétalisée. Commercialité ( Vidoc ) sur 158m2 PHOTOS Et Vidéo Sur DEMANDE Station Oberkampf ( L 5-9 ), Rack à vélo
Source
Lux-Résidences
Publié le
6 février 2026
Vue pour la dernière fois
il y a 5 heures