




Pièces
26 pièces
Chambres
17 chambres
Salles de bain
3
Surface
600 m²
Jardin
Oui
Terrasse
Oui
Consommation énergétique
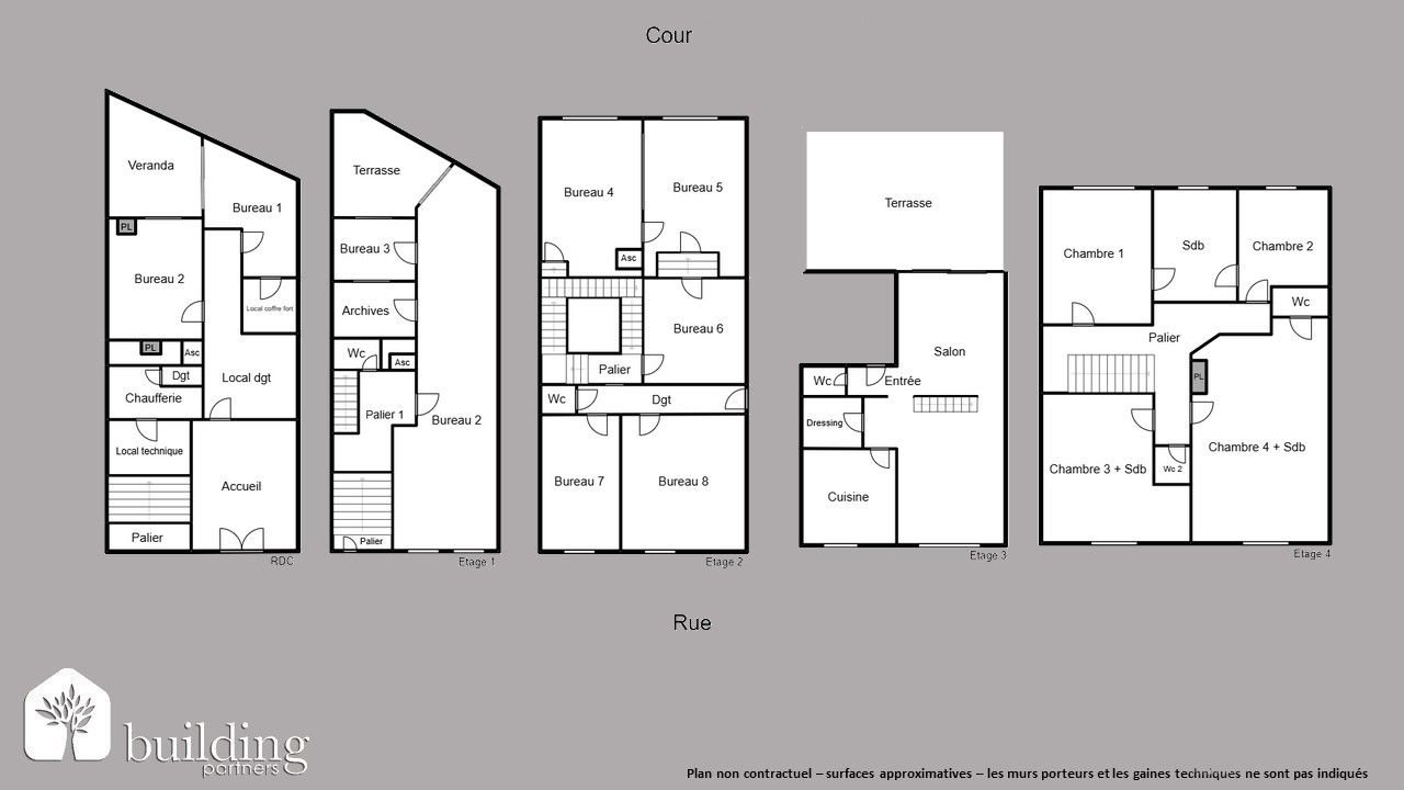
Idéalement situé dans le très recherché 17e arrondissement de Paris, à deux pas de la rue de Courcelles, Building Partners vous propose à la vente un superbe hôtel particulier développant une surface totale de 484,40 m², répartie sur cinq niveaux.Ce bien d'exception se distingue par ses prestations haut de gamme, sa modularité rare et son architecture élégante, alliant le charme de l'ancien à un confort contemporain.Distribution :Rez-de-chaussée : une élégante galerie d'entrée desservant deux bureaux (pouvant être transformés en chambres).1er étage : trois bureaux modulables, salle d'archives, toilettes séparées, et une terrasse arborée de 17,10 m².2e étage : cinq bureaux spacieux et modulables, avec toilettes indépendantes.3e étage : un vaste séjour lumineux, une cuisine aménagée et équipée, un dressing, des toilettes séparées, et une superbe terrasse plein ciel de 46,56 m².4e étage : quatre chambres, dont deux suites, une salle de bains, de nombreux rangements et toilettes séparées.Possibilité de traverser, l'hôtel particulier communiquant au duplex mitoyen sur deux étages, le 3ème et 4ème.Au 3ème étage, la chambre parentale, ainsi qu'un beau séjour, et une salle d'eau.Au 4ème étage, trois belles pièces, une salle à manger ainsi que sa cuisine, des toilettes séparés et une salle d'eau. Ce bien rare sur le marché séduit par sa souplesse d'aménagement et son potentiel exceptionnel : il peut accueillir une résidence familiale d'exception, un siège d'entreprise prestigieux, ou une adresse à usage mixte, dans l'un des quartiers les plus élégants de la capitale.Un lieu unique, où prestige architectural, volume, et sérénité se conjuguent au coeur du 17e arrondissement.N'hésitez pas à nous pour davantage d'informations ou organiser une visite puis 1993, Building Partners accompagne les propriétaires dans la vente de biens immobiliers de standing sur l'Ouest parisien.Notre force ? Une organisation unique articulée autour de deux rôles experts :Les Brokers, spécialisés dans la prospection et la valorisation de votre bien.Les Sellers, experts en négociation et en mise en relation avec notre portefeuille d'acheteurs qualifiés.Avec 5 agences implantées au coeur des quartiers les plus recherchés (Paris 16e, Paris 17e, Neuilly, Levallois, Courbevoie), nous vous offrons une visibilité maximale, un accompagnement sur mesure et un engagement total jusqu'à la signature.Confiez-nous votre bien pour une vente rapide et au meilleur timation offerte, confidentielle et sans engagement.
Source
Meilleurs Agents
Publié le
12 août 2025
Vue pour la dernière fois
il y a 16 heures