




Pièces
2 pièces
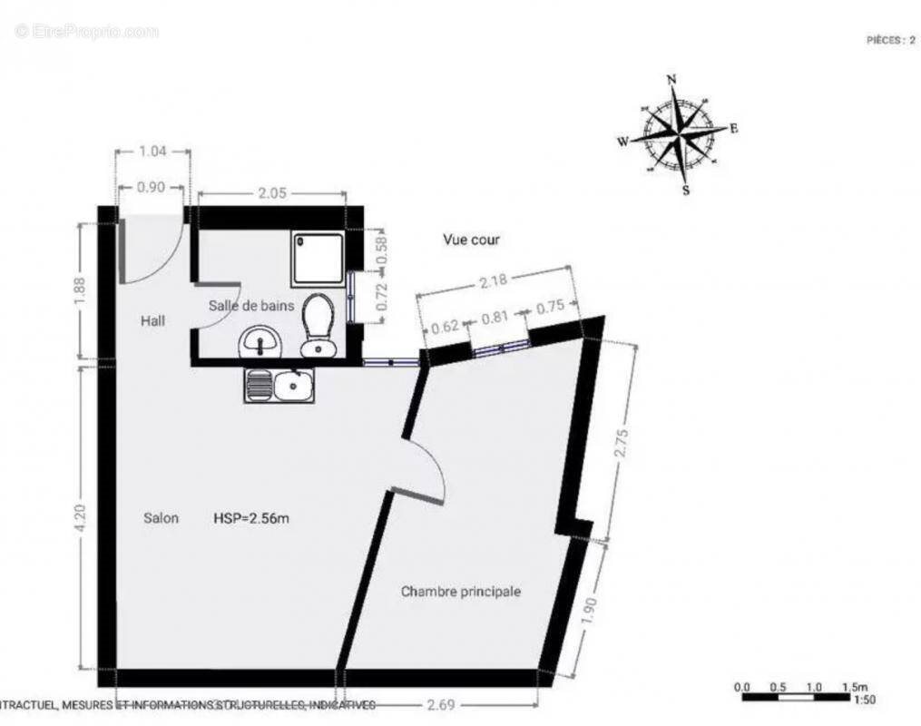
Surface
33 m²
Consommation énergétique
Exclusivité Doly Idéal Investissement - Vendu Loué - Rue De La Folie-Regnault, 75011 L'appartement passe en lettre E au 1Er Janvier 2O26. Doly a le plaisir de vous présenter ce charmant 2 pièces de 33 m², situé au 5e et dernier étage, accessible par escalier, d'un immeuble ancien très bien entretenu. Il se compose d'une entrée desservant une agréable pièce de vie avec cuisine ouverte, une chambre, ainsi qu'une salle d'eau avec Wc sanibroyeur (possibilité d'installer un Wc classique). Travaux de rafraîchissement à prévoir. DPE F Le bien est actuellement loué 732 € charges comprises par mois. Aucun travaux à prévoir dans la copropriété.
Source
Meilleurs Agents
Publié le
14 juillet 2025
Vue pour la dernière fois
à l'instant