




Pièces
3 pièces
Chambres
2 chambres
Surface
71 m²
Balcon
Oui
Consommation énergétique
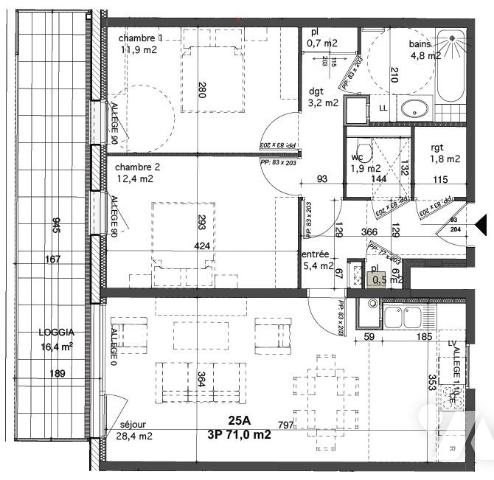
Maison 3 pièces 71 m² Reference Annonce : 51067-L58 - Rue Diderot à Reims, secteur Reims Cathédrale/Paix, dans un immeuble de standing construit en 2021, découvrez cet appartement de trois pièces principales. D'une surface de 71 m², il se compose : d'une entrée, d'un séjour avec cuisine aménagée et équipée, d'un cellier, d'un Wc, de deux chambres avec placards, d'une salle de douche, et d'un balcon de 16 m². Il dispose également d'un garage avec porte électrique. Chauffage gaz. Loyer : 865 euros + 85 euros de charges locatives Soumis à plafond de ressources Pinel Les informations sur les risques auxquels ce bien est expose sont disponibles sur le site Georisques : Une annonce immobilière de notaire du site Immonot Surface : 71 m² Date de réalisation du diagnostic énergétique : Consommation énergie primaire : 67.0 kWh/m²/an Consommation énergie finale : Non communiqué Les informations sur les risques auxquels ce bien est exposé sont disponibles sur le site Géorisques :
Source
Notaires de France
Publié le
27 novembre 2025
Vue pour la dernière fois
il y a 6 heures