



Pièces
2 pièces
Chambres
1 chambre
Surface
39 m²
Consommation énergétique
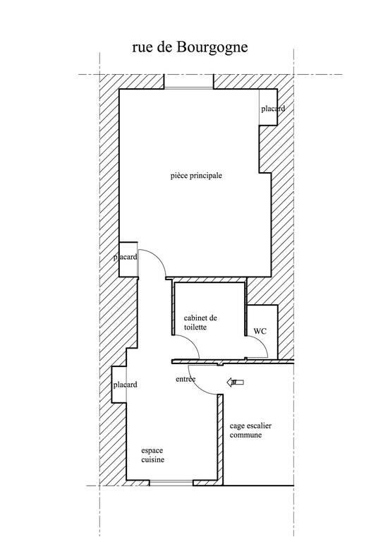
Appartement 2 pièces libre, situé dans l'hyper centre d'Orléans entrée rue Jean Calvin, façade principale rue de Bourgogne à proximité de la préfecture, du bâtiment administratif du Conseil Régional Centre-Val de Loire, 39 m² dans petite copropriété au 1er étage composé : D’une grande pièce principale, cuisine séparée, cabinet de toilette, wc séparés, nombreux rangements, Chauffage électrique et compteur d’eau individuels, interphone. Appartement lumineux proche de tous commerces, proche de l’École Supérieure d'Art et de Design d'Orléans, gare et médiathèque à 10 mn à pied, écoles etc ... Plus d'informations et/ou photos sur demande tel. Charges annuelles de copropriété 250,00 € env. Taxes foncières 750,00 € Dpe classement C en date de juin 2025 Agences immobilières s'abstenir merci. Prix de vente 115 000,00 €
Source
Pap
Publié le
25 août 2025
Vue pour la dernière fois
il y a 1 jour