




Pièces
3 pièces
Chambres
2 chambres
Surface
60 m²
Parking
Oui
Terrasse
Oui
Consommation énergétique
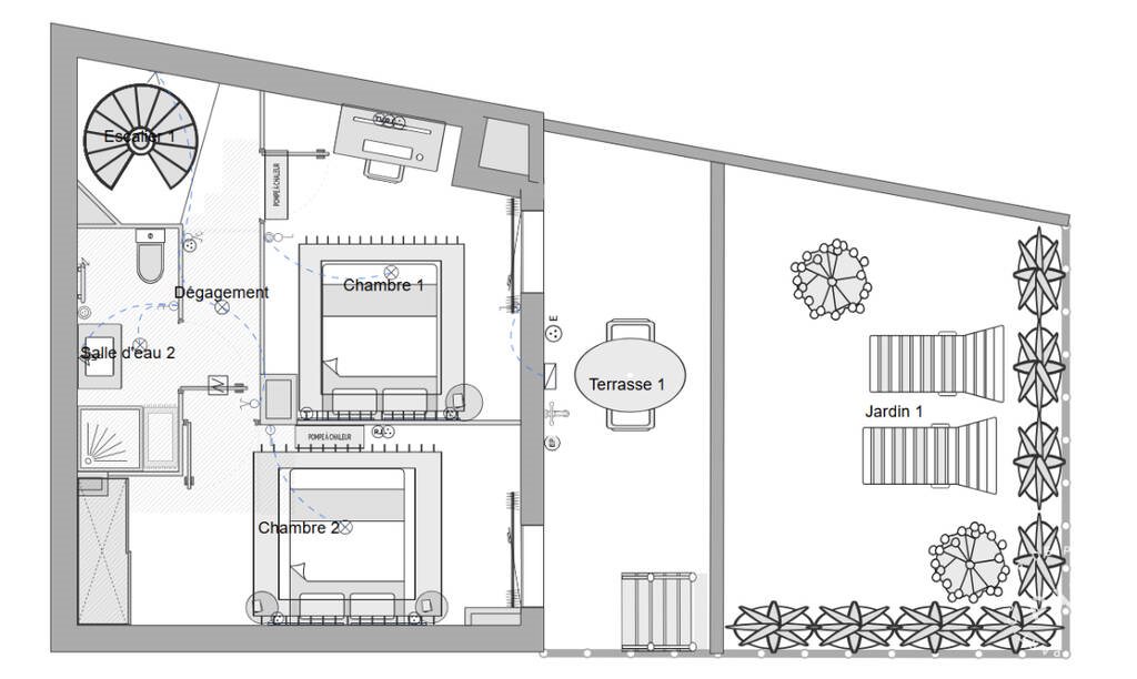
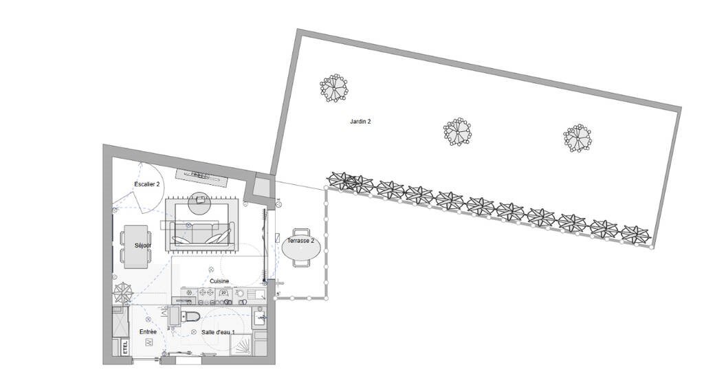
Beau duplex neuf 3 pièces – 60 m² – 2 terrasses (70 m² & 30 m²) – Parking – Quartier Saint-Roch, Nice À découvrir : magnifique duplex neuf de 60 m², jamais habité, situé dans le quartier Saint-Roch à Nice, un secteur calme, vivant et très bien desservi. L’Appartement sera livré la semaine prochaine – vous serez les premiers occupants ! Description du bien • À l’étage : un grand séjour lumineux avec cuisine ouverte aménagée (four, hotte, plaques de cuisson), ouvrant sur une superbe terrasse de 70 m², idéale pour profiter du soleil niçois. • Au rez-de-chaussée : deux chambres confortables donnant sur un second jardin-terrasse de 30 m². • Escalier droit (différent du plan initial). • Nombreuses baies vitrées, belle luminosité. • Place de parking en sous-sol. • Appartement neuf, jamais habité, très lumineux et calme. • Cuisine installée (hors frigo). Un cadre idéal pour une famille grâce aux grands espaces, emplacement, calme et proximité aux transports. 10 minutes du centre et 25 minutes de l’aéroport!
Source
Pap
Publié le
5 novembre 2025
Vue pour la dernière fois
il y a 5 heures