



Pièces
9 pièces
Chambres
6 chambres
Salles de bain
2
Surface
208 m²
Parking
Oui
Jardin
Oui
Terrasse
Oui
Consommation énergétique
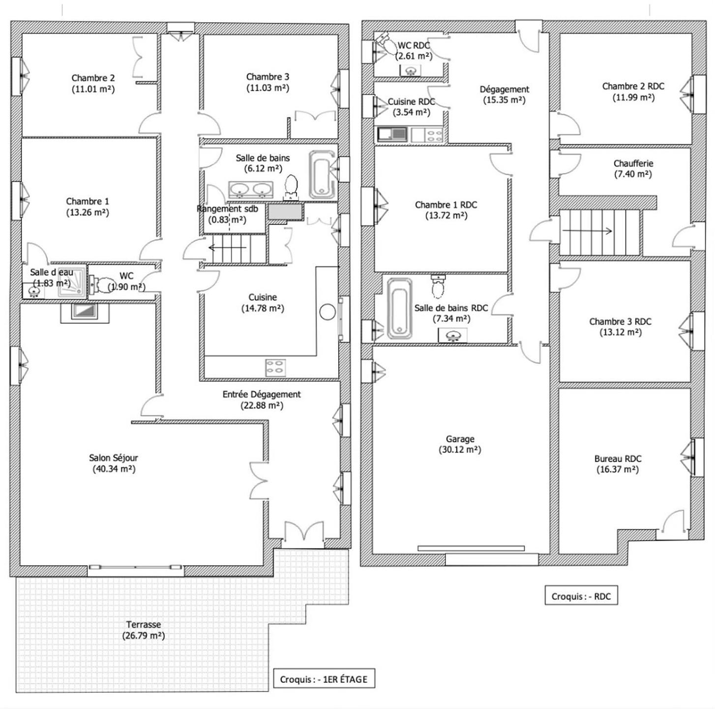
Très grande maison familiale 208 m2, 4 faces, au fond d'une impasse calme, située dans le quartier Agriculture, à 5 mn du marché des Arceaux à vélo, sur un terrain de 417m2. Idéal grande famille, ou profession libérale, ou investissement locatif pour logement étudiants (proche Inrae/Supagro). Possibilité de créer 2 à 3 appartements distincts. Panneaux photovoltaïques avec batterie virtuelle, chauffage pompe à chaleur air-eau. Façade refaite à neuf. 1Er étage : 1 appartement très ensoleillé de 120 m2 comprenant 1 salon de 40m2 avec cheminée, donnant sur une terrasse de 25 m2, 3 chambres, dont 1 avec salle d'eau, 1 cuisine indépendante, 1 salle de bains avec baignoire, 1 toilette indépendant. Rdc : 3 chambres, kitchenette, 1 grand bureau, 1 salle de bains avec baignoire, 1 toilette indépendant + garage carrelé et vitré de 30m2. Jardin ombragé, avec arbres fruitiers. 2 places de parking devant la maison. Ecoles, collèges, commerces de proximité et supermarché à 5mn. Dpe : C - Ges : A
Source
Paruvendu (toute rubriques)
Publié le
31 juillet 2025
Vue pour la dernière fois
il y a 12 heures