




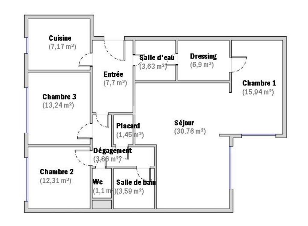
Pièces
4 pièces
Chambres
3 chambres
Salles de bain
1
Surface
107 m²
Ascenseur
Oui
Cave
Oui
Consommation énergétique
Dã©Couvrez cet appartement de 4 piÚces, traversant et lumineux de 107 m²,situé au dernier étage d'un immeuble bien entretenu avec gardien.Il est idéalement situé dans le quartier Bel Air de Paris, proche du bois, des commerces et des transports.DÚs l'entrée, vous serez séduit par la luminosité qui inonde chaque piÚce grâce à de grandes fenêtres.Il est composé d'une entrée, d'un vaste séjour, salon/salle à manger de 30m2, d'une cuisine, de trois chambres, d'une salle de bain, d'une salle d'eau, d'un dressing et d'un wc. Des travaux de rénovation sont à prévoir.Le bien est complété d'une cave.Contactez-moi dÚs maintenant pour organiser une visite.Bien soumis au statut de la copropriété, 74 logements, procédure en cours : aucune, 86 lots, Charges budget prévisionnel annuel 5 000 â,¬.Annonce publiée par Nathalie Dubowsky (Ei) votre agent commercial en immobilier Lf immo à Nogent Sur Marne, 94130 immatriculé au Rsac de Créteil sous le n°422 137 802 000 27. Consultez nos tarifs sur le site Lf immo.Les informations sur les risques auxquels ce bien est exposé sont disponibles sur le site Géorisques :
Source
Paruvendu (toute rubriques)
Publié le
15 décembre 2025
Vue pour la dernière fois
il y a 8 heures