



Pièces
3 pièces
Chambres
2 chambres
Salles de bain
1
Surface
59 m²
Ascenseur
Oui
Consommation énergétique
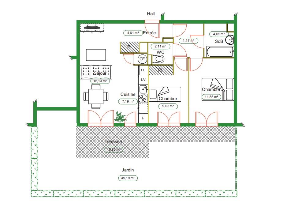
Im-Ô, à vos côtés pour votre bien Appartement de type 3 au 119 Bis avenue Victor Hugo à Dijon. Situé dans une charmante résidence construite en 2012 avec accès sécurisé par badge, situé au rez de chaussée, cet appartement de 59 m² se compose d'un salon avec une cuisine ouverte de 23 m², donnant sur une terrasse de 15 m² et un jardin privatif de 49 m². L'espace nuit comprend 2 chambres, une salle de bain et des WC. Le logement est également équipé de plusieurs placards de rangement. Cet appartement dispose d'un chauffage individuel par pompe à chaleur. Les charges comprennent l'abonnement à l'eau froide ainsi qu'un contrat de maintenance multi-services. L'emplacement permet de profiter des commodités et un accès rapide au centre ville par les lignes de bus et au tram Divia à proximité. Il est également possible de louer un garage en supplément. Pour toute information complémentaire, merci de Madame Solanes Loane, ou Madame Guillouet Margaux.
Source
Seloger
Publié le
6 février 2026
Vue pour la dernière fois
il y a 7 heures