




Pièces
4 pièces
Chambres
3 chambres
Salles de bain
1
Surface
110 m²
Ascenseur
Oui
Parking
Oui
Terrasse
Oui
Balcon
Oui
Cave
Oui
Consommation énergétique
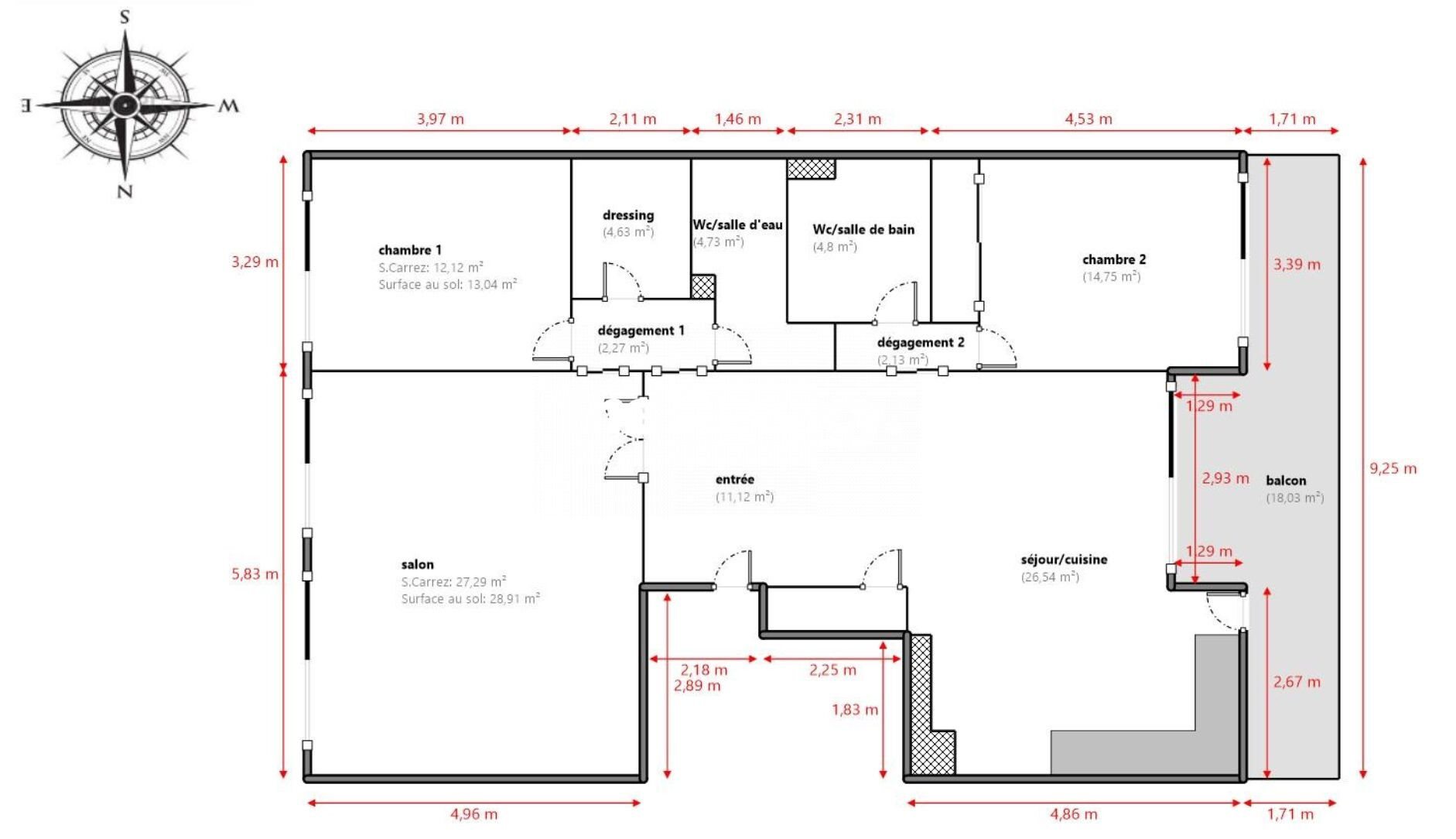
' 7ème merveille du Prado ' 8Ème – Prado Borde Type 4 traversant et lumineux de 110m² avec terrasse de 18m² + Cave en sous-sol + Garage simple fermé en sous-sol en Sus Idéalement situé à proximité des axes autoroutiers, transports en commun, commerces et commodités du quotidien et établissements scolaires. Au sein d'un immeuble de bon standing, The Agency vous propose en exclusivité un type 4 de 110,38m² Loi Carrez traversant Est / Ouest au 7ème étage sur 8 avec ascenseur. Il se compose de la façon suivante : Côté jour : Une entrée, une pièce de pive réunissant un salon / séjour et une cuisine ouverte meublée et équipée, le tout donnant accès à une terrasse / balcon de 18,03m² exposée Ouest. Côté nuit : Une suite parentale avec placard de rangement, un espace dressing et sa salle de bain avec Wc, celle-ci donne accès à l'extérieur. Une seconde chambre avec placard de rangement, une pièce à usage de buanderie, une salle d'eau avec Wc. Et un Wc indépendant supplémentaire. Le bien est équipé d'une climatisation gainable, d'huisseries en aluminium double vitrage et de volets roulants électriques. Appartement à rafraichir dans son ensemble. Possibilité d'acquérir un garage simple fermé de 14m² en sous-sol en Sus. Charges (appartement + cave) : 480.20 euros /mois (Comprenant eau froide, eau chaude, climatisation et chauffage, entretien des parties communes, concierge, ascenseur, assurances copropriété et honoraires syndic) Charges (garage) : 19.20 euros /mois Taxe foncière (le tout) : 3 485.00 euros /an ' The Agency Immo, la méthode pour une transaction réussie ' Honoraires inclus de 6.21% Ttc à la charge de l'acquéreur. Prix hors honoraires 564 000 euros. Dans une copropriété de 70 lots. Quote-Part moyenne du budget prévisionnel 5 762 euros/an. Aucune procédure n'est en cours. Classe énergie C, Classe climat C Montant estimé des dépenses annuelles d'énergie pour un usage standard : entre 1240.00 euros et 1730.00 euros sur les années 2021, 2022 et 2023 (abonnements compris). Les informations sur les risques auxquels ce bien est exposé sont disponibles sur le site Géorisques : . Votre conseiller The Agency : Vaïana Poli Agent commercial (Entreprise individuelle). ' The Agency Immo, la méthode pour une transaction réussie'
Source
Seloger
Publié le
3 février 2026
Vue pour la dernière fois
il y a 4 heures