




Pièces
2 pièces
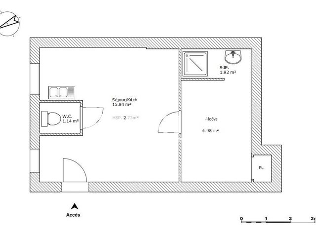
Surface
40 m²
Meublé
Oui
Consommation énergétique
Centre ville historique, 3 rue paul lendrin, appartement 2 pièces meublé au 2ᵉ étage. Ses atouts : dans petit immeuble agréable, appartement entièrement rénové avec gout, double vitrage, cuisine équipée, machine à laver.
Source
Seloger
Publié le
10 décembre 2025
Vue pour la dernière fois
il y a 16 heures