
Pièces
7 pièces
Chambres
4 chambres
Salles de bain
1
Surface
196 m²
Ascenseur
Oui
Cave
Oui
Consommation énergétique
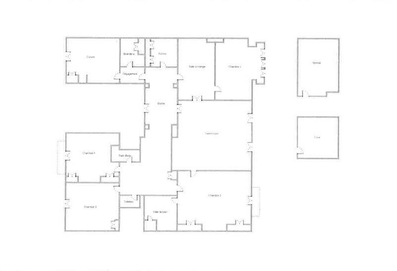
A Louer - T7 - 196 M2 - Lyon 6E Arrondissement 11 Rue Lieutenant Colonel Prevost - Lyon 6E Arrondissement Nous vous proposons à la location un superbe appartement ancien de type T7, d'une superficie de 196 m², idéalement situé dans le 6e arrondissement de Lyon, à proximité immédiate du Parc de la Tête d'Or, des quais, des transports en commun et de toutes les commodités. Situé au 3e étage avec ascenseur d'un immeuble de standing, cet appartement se compose d'une entrée avec rangements intégrés, d'un séjour lumineux avec parquet, d'une salle à manger, ainsi que d'une cuisine séparée et aménagée (plaques de cuisson, four, micro-ondes, rangements hauts et bas). L'espace nuit comprend quatre chambres, dont une suite parentale avec salle de bains, deux chambres bénéficiant de balcons, une salle d'eau, une buanderie, un bureau, ainsi qu'un Wc séparé. Une cave et un grenier complètent ce bien. Nous vous offrons également la possibilité de louer un grand garage fermé, situé 38 Rue de Créqui - 69006 Lyon, pour un loyer mensuel de 200.00€. Disponible à partir du . Loyer charges comprises : 3 092.00€ Loyer hors charges : 2 912.00€ Montant des charges récupérables mensuelles : 180.00€ Dépôt de garantie : 2 912.00€ Honoraires de location : 1 950.00€ Dont état des lieux : 450.00€ Modalité de production de chauffage : individuel - gaz - chaudière Modalité de production d'eau chaude sanitaire : individuelle - électrique - cumulus Dpe C Ges C N'hésitez pas à nous pour toute information complémentaire ou pour organiser une visite.
Source
Seloger
Publié le
23 janvier 2026
Vue pour la dernière fois
il y a 3 heures