




Pièces
4 pièces
Chambres
3 chambres
Salles de bain
3
Surface
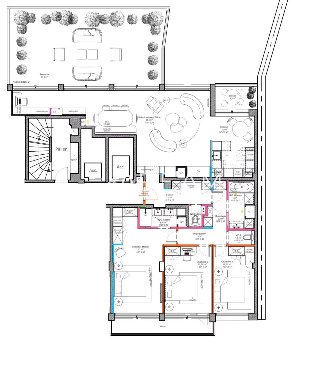
147 m²
Ascenseur
Oui
Parking
Oui
Terrasse
Oui
Cave
Oui
Consommation énergétique
Au sein d'un immeuble moderne entièrement rénové, appartement traversant de 4 pièces de 147 m² habitable avec 35m² de terrasses, situé au 8ème étage. Ce bien d'exception sera vendu brut, entièrement curé, avec une possibilité d'accompagnement dans le choix des plans, de l'architecte d'intérieur et de la société qui exécutera les travaux. Il se compose d’une entrée, d’une cuisine américaine, d’un salon - salle à manger donnant directement sur une tersasse de plain-pied de 35 m² (au calme côté cour). La partie nuit dispose de 3 chambres et 3 salles de bains. Une cave complète ce bien et une ou plusieurs places de parking sont possibles en supplément. Les informations sur les risques auxquels ce bien est exposé sont disponibles sur le site Géorisques :
Source
Aream
Publié le
21 mai 2024
Vue pour la dernière fois
il y a 11 heures