




Pièces
4 pièces
Surface
99 m²
Terrasse
Oui
Consommation énergétique
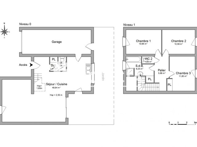
Proche de toutes commodités et à environ 10 kilomètres de Niort, maison de type 4 à étage, avec jardin et garage. Cette maison comprend au Rdc une entrée avec placard mural, wc, une cuisine ouverte, aménagée et équipée (hotte, plaque de cuisson, four) et une pièce de vie qui mène à une terrasse avec pergola. A létage, trois chambres dont l'une avec un placard mural, une salle de bains avec douche et baignoire et wc séparés. Arrêt de bus à quelques pas de la maison. Garage attenant à la maison (accès direct par la cuisine) et chauffage gaz.
Source
Avendrealouer
Publié le
8 janvier 2026
Vue pour la dernière fois
il y a 7 heures