




Pièces
2 pièces
Surface
44 m²
Consommation énergétique
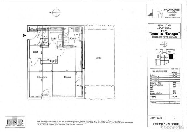
Agence La Francaise Immobiliere Janzé ! En Exclusivité, venez découvrir ce bel appartement T2 en rez-de-jardin, idéalement situé dans une résidence prisée, à seulement quelques pas du centre de Janzé. Parfait pour un investissement locatif, il est vendu loué avec un loyer mensuel de 456 euros. Vous apprécierez son séjour lumineux ouvert sur un jardin privatif de 21 m², plein sud et sans vis-à-vis, offrant un véritable havre de paix pour profiter des beaux jours. La cuisine ouverte aménagée, la chambre confortable et la salle de bains fonctionnelle composent un espace bien pensé et agréable à vivre. Une place de stationnement privative vient compléter cet ensemble aux nombreux atouts. Un investissement sûr et serein, combinant emplacement, confort et rentabilité.
Source
Avendrealouer
Publié le
12 novembre 2025
Vue pour la dernière fois
il y a 3 heures