




Pièces
3 pièces
Chambres
2 chambres
Salles de bain
1
Surface
70 m²
Meublé
Oui
Ascenseur
Oui
Parking
Oui
Balcon
Oui
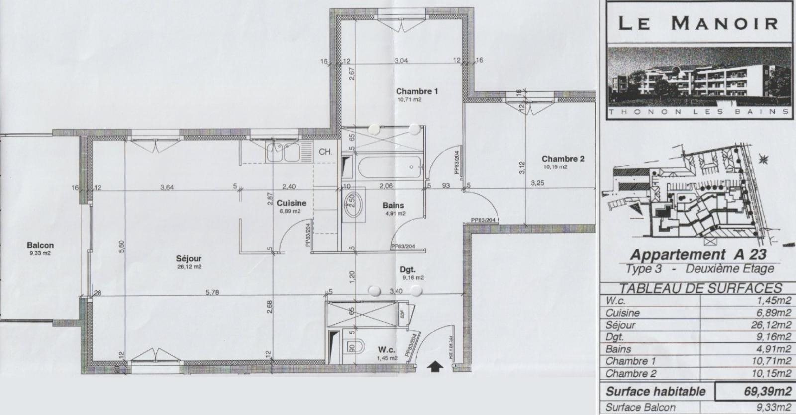
Belle affaire sur Thonon ! - 8, chemin des Guillettes, proche centre ville et embarcadère, dans résidence calme et bien entretenue "Le Manoir" - Entrée E, secteur Est à Concise, appartement T3 de 69m² au 2ème et dernier étage (sans ascenseur) comprenant : entrée, cuisine (meuble sous évier) semi-ouverte sur séjour avec accès balcon, 2 chambres, salle de bain et wc séparé. Rangements. Chauffage et production d'eau chaude par chaudière individuelle gaz. Garage en surface et parking extérieur n°18 inclus dans la location. Logement repeint. Parquet neuf dans les 2 chambres. Disponibilité: Avril 2026. Contact: agence Barnoud Thonon. Loyer de 984,20 euros par mois charges comprises dont 85,00 euros par mois de provision pour charges (soumis à la régularisation annuelle). Les honoraires charge locataire sont de 902,07 euros ( soit 12,89 euros/m² ) dont 208,17 euros pour état des lieux ( soit 2,97 euros/m² ). Montant estimé des dépenses annuelles d'énergie pour un usage standard : entre 1 100 et 1 540 euros. Prix moyens des énergies indexés en 2021.
Source
Barnoud-immobilier
Publié le
14 mars 2026
Vue pour la dernière fois
il y a 10 heures