




Pièces
3 pièces
Chambres
2 chambres
Salles de bain
2
Surface
108 m²
Consommation énergétique
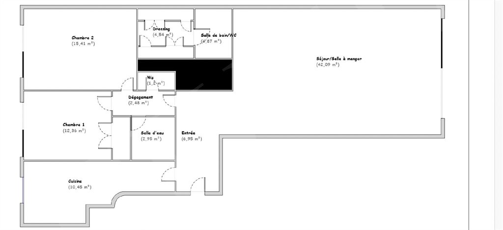
A proximité du Trocadéro, à deux pas du musée Galliera avec vue Tour Eiffel. Magnifique appartement situé dans un immeuble récent de très haut standing sécurisé 24h/24. Idéalement placé entre rue et jardin, il offre un cadre de vie paisible et raffiné à proximité des commerces et du métro Iéna. Caractéristiques principales : Excellent plan avec Galerie d'entrée élégante, grand double séjour lumineux avec de généreux espaces baignés de soleil, 2 chambres spacieuses et lumineuses, 2 salles de bains, une cuisine équipée. Deux beaux balcons. Vue imprenable sur la Tour Eiffel. Nombreux rangements et penderies. Cave, parking possible dans l'immeuble. Civel Immobilier 56 Avenue Marceau 75008 Paris Tél. Port :
Source
Civel
Publié le
29 mars 2025
Vue pour la dernière fois
il y a 3 heures