




Pièces
4 pièces
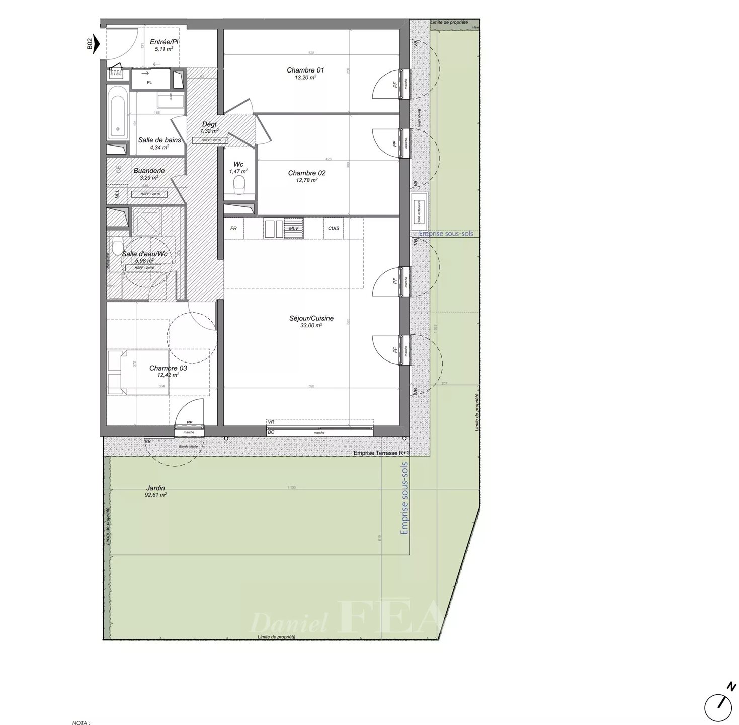
Chambres
3 chambres
Salles de bain
2
Surface
98 m²
Parking
Oui
Au coeur d'un domaine privé idéalement situé, en bordure d'un espace boisé classé à seulement deux kilomètres du centre-ville d'Aix en Provence et de la place Bellegarde, au sein d'une résidence récente de standing, appartement neuf de 98 m² habitables disposant d'un jardin privatif de 92m2 et de deux garages. Séjour et cuisine exposés sud, avec accès sur l'extérieur, trois chambres, une salle de bains et une salle d'eau. Prestations de qualité, climatisation, domotique,... Bus accessible à pied, commerces, écoles primaires, collèges et lycées à moins de cinq minutes en voiture. Environnement arboré et calme aux abords immédiats de la ville, au sein d'une résidence intimiste et élégante proche de toutes commodités. Nombre de lots : 41
Source
Danielfeau
Publié le
18 octobre 2025
Vue pour la dernière fois
il y a 11 heures