




Pièces
5 pièces
Chambres
3 chambres
Salles de bain
1
Surface
109 m²
Étage
1
Consommation énergétique
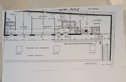
Chemin-Vert - Equinimo Prestige, vous propose à la vente ce loft en duplex de 109 m2 offrant un énorme potentiel pour les amateurs de rénovation et de réagencement. Il représente une occasion unique de créer un espace à votre image, adapté à vos besoins et envies. Cet appartement, exposé Ouest sur un jardin arboré, est situé au calme dans un bâtiment indépendant 'comme une maison', rue du Chemin Vert entre les métros Chemin Vert et Breguet Sabin. Ce bien se compose: - Au premier niveau d'une entrée, de 3 chambres (11m2, 11m2 et 12m2), d'une salle de bains, d'un dressing et d'un Wc indépendant - Au second niveau d'un double séjour de 29m2, d'un bureau, d'une cuisine séparée de 10m2, d'une lingerie, d'une salle d'eau et d'un Wc indépendant L'appartement dispose notamment de fenêtres en double vitrage et de volets roulants électriques.
Source
Equinimo
Publié le
11 décembre 2025
Vue pour la dernière fois
il y a 18 heures