




Pièces
2 pièces
Salles de bain
1
Surface
43 m²
Parking
Oui
Terrasse
Oui
Consommation énergétique
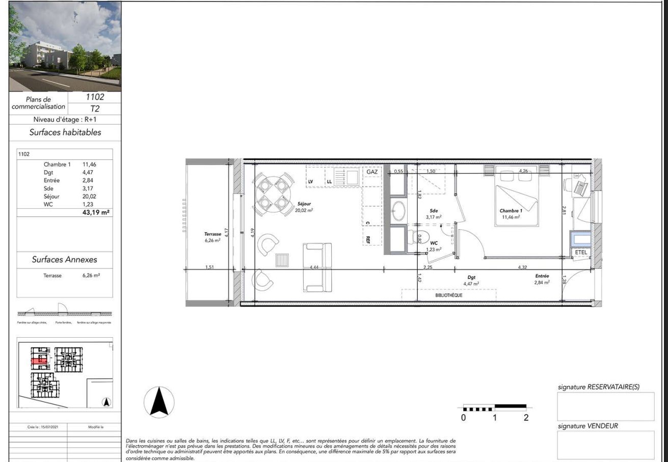
Tours NORD Disponible immédiatement Dans la résidence neuve "Green Lux", nous vous proposons ce T2 de 43.19m². Il se compose d'une entrée/dégagement, d'une chambre avec salle d'eau, de Wc séparés ainsi que d'un séjour de 20.02m² offrant un accès à une terrasse de 6.26m². Une place de parking complète le logement. Chauffage et eau chaude individuel gaz. Entretien parties communes, compris dans les provisions sur charges. DISPOSITIF Pinel Les honoraires de location de 478 euros Ttc (à la charge du locataire) incluent le montant de rédaction des états des lieux facturé pour 130 euros Ttc, après réalisation lors de l'entrée dans les lieux. Dépôt de garantie : 570.00€ Honoraires dus à Afedim : 130.00€ (état des lieux) Honoraires dus à notre agence : 478.00€ (location)
Source
Erafrance
Publié le
1 février 2026
Vue pour la dernière fois
il y a 6 heures