



Pièces
3 pièces
Chambres
1 chambre
Salles de bain
1
Surface
46 m²
Cave
Oui
Consommation énergétique
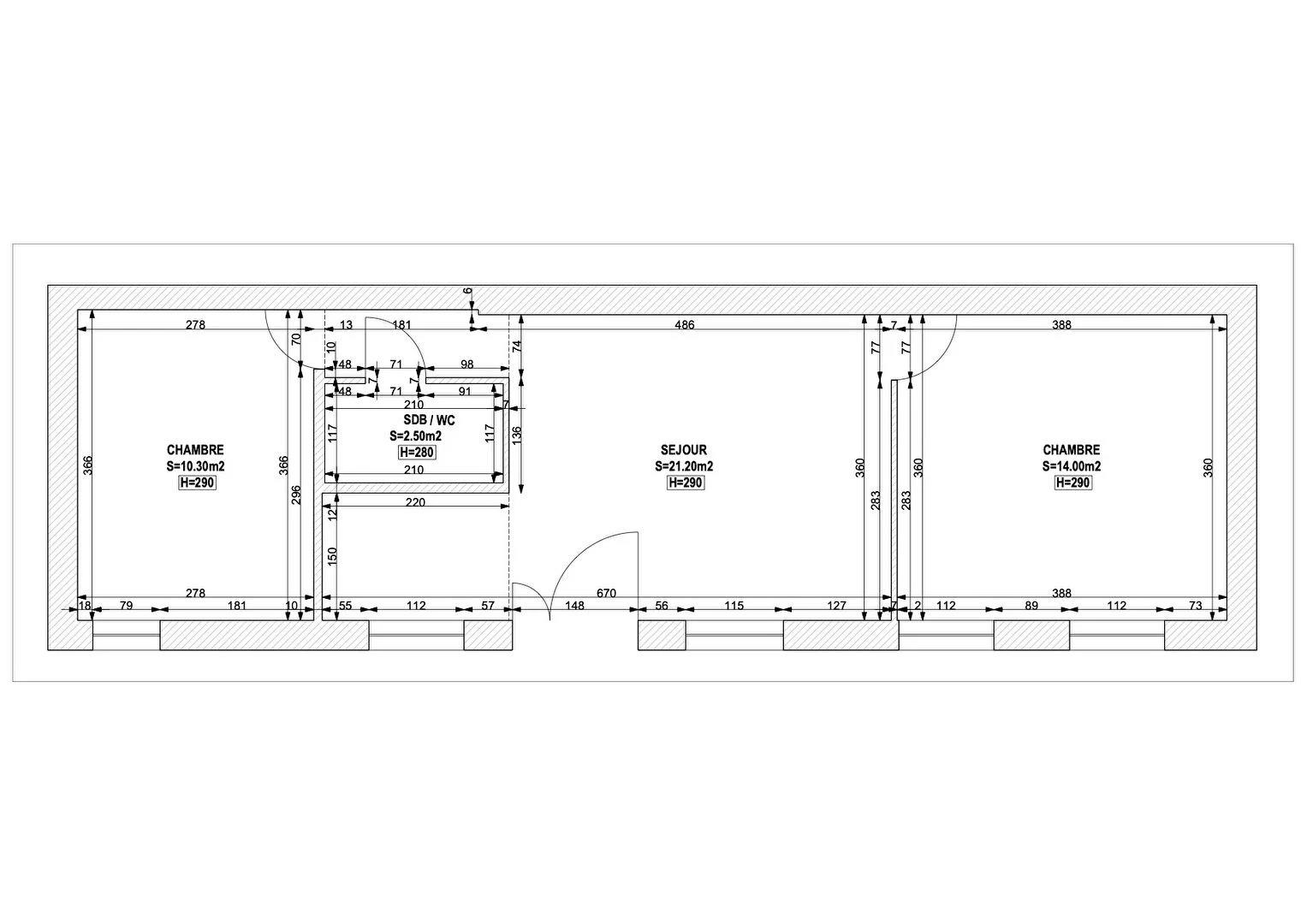
A quelques mètres de la place Saint-Ferdinand, à l'abri de l'agitation, cette maison sur cour développe 46,47 m² Carrez de plain-pied. Actuellement organisée en trois pièces, la maison se compose d'un séjour avec cuisine semi-ouverte, d'une pièce attenante de 13 m² pouvant être réunie pour créer un espace de vie plus généreux, d'une chambre de 10 m² et d'une salle d'eau avec toilettes. Une cave en sous-sol complète ce bien soumis au régime de copropriété. Professions libérales autorisées. Métro Argentine (ligne 1). Contact : Joachim ? +33 6 Copropriété de 19 lots (Pas de procédure en cours). Charges annuelles : 2323 euros. Joachim Druart (Ei) Agent Commercial - Numéro Rsac : 838 692 671 - Paris.
Source
Espaces-atypiques
Publié le
14 août 2025
Vue pour la dernière fois
il y a 16 heures