



Pièces
2 pièces
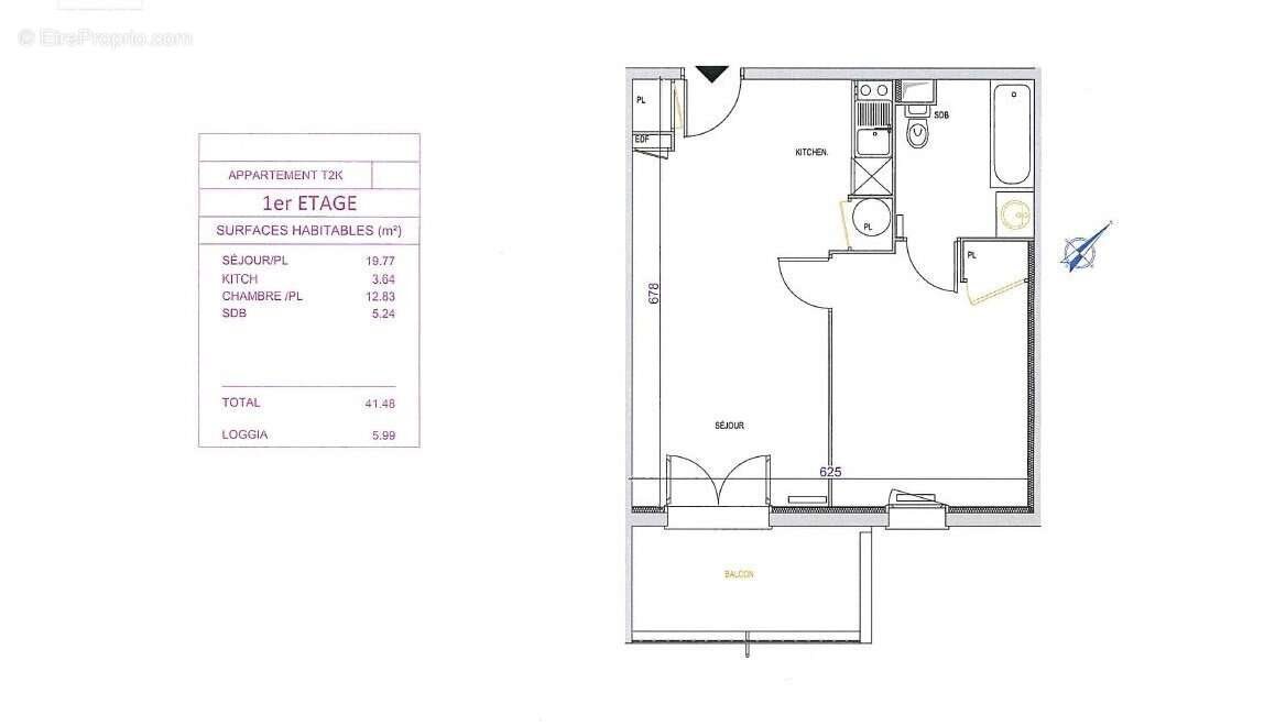
Surface
41 m²
Consommation énergétique
Ravalement Facade Vote - Paye Par Les Vendeurs Libre De Toute Occupation Situé à Ambes, dans une Résidence récente de 2012, idéalement situé, à proximité ecole, centre ville, transports, venez découvrir ce bel appartement T2 d'environ 42 m² au 1er étage sur 2 Lumineux exposé Sud-Est avec Balcon Et?Parking. Il est composé d'une entrée avec placard, ouvert sur un séjour/cuisine le tout donnant sur un balcon d'environ 6m². Il dispose d'une chambre avec placard et d'une salle de bains avec Wc, Ravalement voté et payé !!! Taxe foncière : 655 Une place de parking privative extérieur vient compléter ce bien. Vendu Libre De Toute Occupation
Source
Etreproprio
Publié le
27 décembre 2025
Vue pour la dernière fois
le 23/03/2026