




Pièces
12 pièces
Surface
375 m²
Consommation énergétique
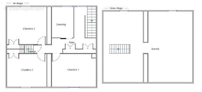
Fabrice Payne vous propose cet immeuble, ancien commerce, proche du centre ville, totalisant plus de 375 m2 utiles. Il se compose actuellement de la partie professionnelle et d'une habitation, avec parking et garages, un extérieur de 100m2. Les surfaces sont réparties comme suit: 262 m2 en Rdc, 51 m2 au 1er étage, un comble aménageable de 45 m2 au sol, une cave saine et cuvelée de 23 m2. L'habitation en elle-même fait 114 m2 habitables. Bon état général et de nombreuses possibilités de redécoupage selon la destination ou l'activité future. En bref une rare opportunité sur Hem ! Les honoraires d'agence sont à la charge de l'acquéreur, soit 4,48% Ttc du prix hors honoraires. Les informations sur les risques auxquels ce bien est exposé sont disponibles sur le site Géorisques : Georisques. Gouv. Fr. Contactez Fabrice Payne Entrepreneur Individuel, Agent commercial (Rsac N°507 529 212 Greffe de Lille) [Coordonnées masquées] (réf. 591352 )
Source
Etreproprio
Publié le
16 février 2026
Vue pour la dernière fois
il y a 9 heures