



Pièces
3 pièces
Surface
75 m²
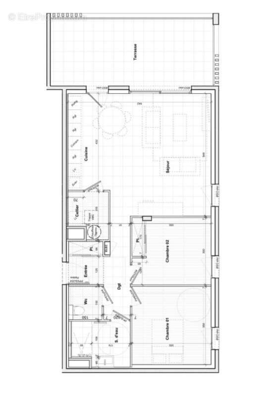
Appartement neuf d'exception - Vefa - livrable fin 2026 Découvrez ce superbe appartement neuf de 74.60 m² conçu pour offrir confort et modernité, au sein d'une résidence de qualité. Il bénéficie de belles prestations et d'une distribution optimisée des espaces. Vous profiterez d'une magnifique terrasse de 22.80 m², idéale pour vos moments de détente, avec une vue dégagée dans un environnement calme et privilégié. Un garage complète ce bien, apportant un véritable confort au quotidien. Livraison prévue fin 2026 Normes récentes, performance énergétique optimale Cadre paisible et agréable à vivre Un bien rare, parfait pour une résidence principale ou un investissement de qualité. Copropriété de 12 lots. Pierre Gregoire (Ei) Agent Commercial - Numéro Rsac : 935 291 914 R.S.A.C. - Lyon.
Source
Etreproprio
Publié le
28 décembre 2025
Vue pour la dernière fois
le 23/03/2026