




Pièces
2 pièces
Surface
38 m²
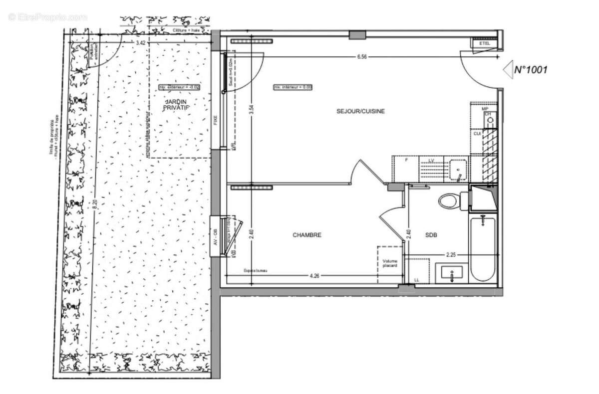
Iad France - Sarah Rozière ([Coordonnées masquées]) vous propose : Appartement T2 avec jardin à Lens. Située rue Édouard Vaillant à Lens, la résidence Côté Centre s'inscrit dans un quartier calme et résidentiel, en lisière immédiate du centre-ville. Son architecture sobre et contemporaine, associée à des espaces paysagers soignés, offre un cadre de vie agréable, pratique et serein, à proximité des commerces, des écoles et des transports. Un appartement raffiné : - Situé en rez-de-jardin, cet appartement 2 pièces de 38,02 m² environ habitables se prolonge par un jardin privatif de 29 m² environ. - Séjour / cuisine lumineux avec ouverture sur l'extérieur. - Chambre confortable. - Salle de bains moderne équipée et WC. De belles prestations : - Chauffage et production d'eau chaude par chaudière individuelle. - Menuiseries Pvc avec volets roulants. - Salle de bains équipée d'un meuble vasque avec miroir et radiateur sèche-serviettes. - Résidence sécurisée, clôturée, avec contrôle d'accès et stationnements. L'art de vivre à Lens : - Commerces, écoles et services accessibles à pied. - Centre-ville et place Jean Jaurès à quelques minutes. - Transports en commun à proximité immédiate. - Accès rapide aux axes routiers (A21, A1, A26). Quartier résidentiel calme, idéal pour une résidence principale ou un investissement. N'hésitez pas à me pour plus d'informations ou pour un accompagnement sur mesure. Honoraires d'agence à la charge du vendeur. Bien non soumis au Dpe. Les informations sur les risques auxquels ce bien est exposé sont disponibles sur le site Géorisques : La présente annonce immobilière a été rédigée sous la responsabilité éditoriale de Mlle Sarah Rozière Ei (Id 83696), mandataire indépendant en immobilier (sans détention de fonds), agent commercial de la Sas France immatriculé au Rsac de Clermont-Ferrand sous le numéro , titulaire de la carte de démarchage immobilier pour le compte de la société France SAS. Retrouvez tous nos biens sur notre site internet. Informations Loi Alur : Honoraires charge vendeur. (Gedeon )
Source
Etreproprio
Publié le
1 mars 2026
Vue pour la dernière fois
il y a 4 heures