




Pièces
3 pièces
Surface
66 m²
Terrasse
Oui
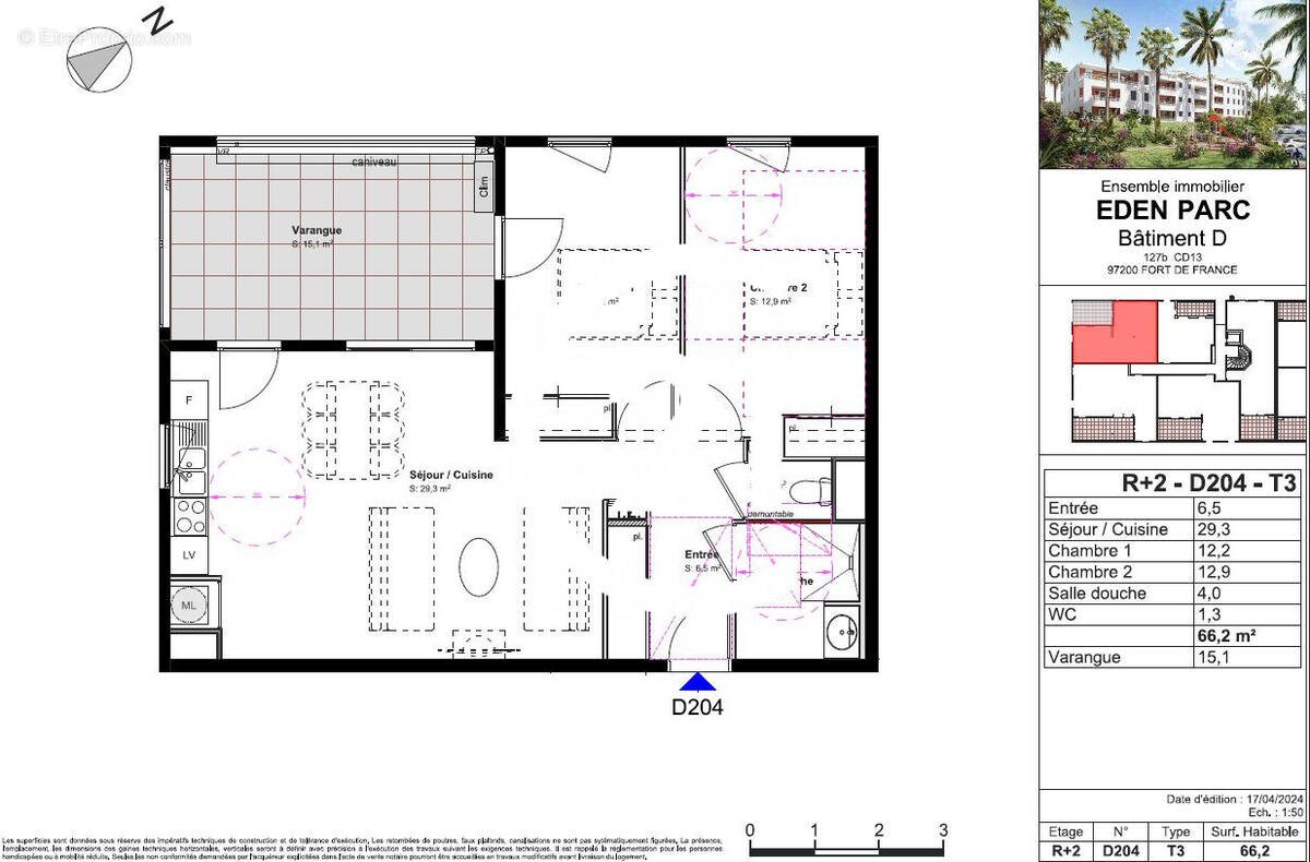
Appartement T3 Neuf avec Terrasse et Stationnement - Résidence Eden Parc Découvrez ce bel appartement T3 neuf, situé au 2ème étage d'une résidence moderne de 3 étages. Avec une surface habitable de 66,20 m², cet appartement fonctionnel offre un cadre de vie pratique! Il est composé d'un séjour de 29 m², deux chambres de 12m² environ, la salle d'eau moderne et le Wc séparé complètent ce bien avec une touche de praticité. Profitez d'une terrasse de 15 m² pour profiter de l'extérieur. La résidence est équipée d'un ascenseur. La livraison de cette résidence est prévue au 2eme trimestre 2026. Ne manquez pas cette opportunité de vivre dans un cadre moderne et confortable. À proximité, vous trouverez plusieurs commodités essentielles, dont des écoles, des supermarchés, et des transports en commun, rendant votre quotidien plus pratique et agréable. Contactez-nous dès aujourd'hui pour une visite. Honoraires à la charge du vendeur. Dans une copropriété de 35 lots. Aucune procédure n'est en cours. Non soumis au Dpe. Les informations sur les risques auxquels ce bien est exposé sont disponibles sur le site Géorisques : .
Source
Etreproprio
Publié le
27 février 2026
Vue pour la dernière fois
il y a 9 heures