



Pièces
2 pièces
Chambres
1 chambre
Salles de bain
1
Surface
44 m²
Terrasse
Oui
Consommation énergétique
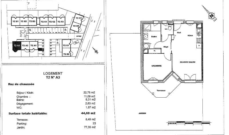
Loyer : 516 € par mois charges comprises charges comprises dont - 45 € par mois de provision pour charges - régularisation annuelle Dépôt de garantie : 471 € Honoraires charge locataire : 496 € Ttc dont - 135 € Ttc pour état des lieux À louer -Beau T2 avec terrasse et grand jardin -Castelculier Situé dans une résidence calme et sécurisée, ce T2 en rez-de-chaussée offre un cadre de vie idéal à proximité immédiate de l'école primaire de Castelculier, de la salle des fêtes municipale ainsi que des transports et des commodités du village. Le logement D'une surface habitable de 44,68 m², ce T2 se compose de : -Un séjour lumineux avec cuisine ouverte (22,78 m²) -Une chambre confortable de 11,09 m² -Une salle de bain fonctionnelle (6,31 m²) et d'un wc séparé Le séjour ouvre sur une terrasse de 6,49 m² donnant accès à un grand jardin privatif de 77,35 m², parfait pour profiter de l'extérieur en toute tranquillité. Louez un logement avec Elyade et bénéficiez gratuitement pendant 12 mois d'ALLOLILY, le service de conciergerie privée accessible à tous (sans obligation de souscription) ! Pour plus d'informations, contactez notre agence. VISITES Et Reservations - .390 ( Appel non surtaxé) Les informations sur les risques auxquels ce bien est exposé sont disponibles sur le site Géorisques :
Source
Fnaim
Publié le
10 février 2026
Vue pour la dernière fois
il y a 3 heures