




Pièces
2 pièces
Chambres
1 chambre
Surface
62 m²
Étage
3
Ascenseur
Oui
Parking
Oui
Terrasse
Oui
Balcon
Oui
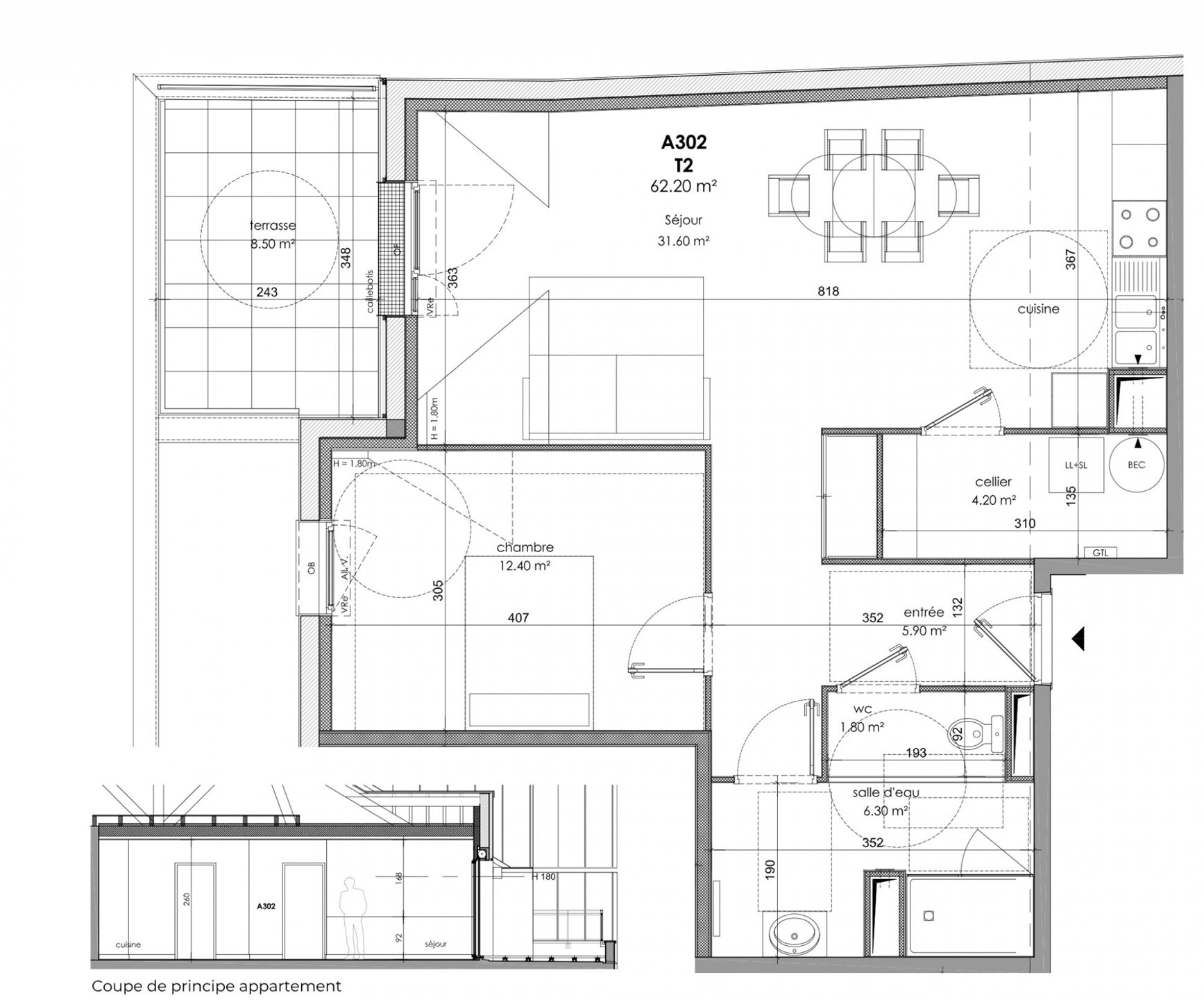
L'agence 'Mon Bien A La Mer', spécialiste de l'immobilier neuf sur les côtes Bretonnes, vous présente : TRAVAUX En Cours : Très rare : à Tregastel résidence de standing à 50m de la Baie de Sainte Anne, commerces à pied. Seulement 23 logements. Ascenseur, Menuiseries Alu Qualimarine, volets roulants électriques, isolation Re2020, chauffage électrique. Livraison été 2027, frais de notaire réduits. Superbe T2bis au 3è et dernier étage, exposé sud comprenant : - Séjour 31,6m2 donnant sur terrasse 8,5m2 (profondeur 2,43m) - Chambre 12,4m2 - Cellier / arrière cuisine 4,2m2 - Salle d'eau douche à l'italienne 6,3m2 - Wc suspendus séparés - Entrée, dégagements, placards - Parking inclus. Nous Consulter Honoraires à la charge du vendeur. Dans une copropriété de 22 lots. Aucune procédure n'est en cours. Non soumis au Dpe. Les informations sur les risques auxquels ce bien est exposé sont disponibles sur le site Géorisques : . Votre conseiller Mon Bien A La Mer : Gérant - .fr Mon Bien A La MER Carte T Cpi 025 040 Rcp Acm Iard B1
Source
Fnaim
Publié le
13 mars 2026
Vue pour la dernière fois
le 23/03/2026