Casanea logo
Casanea
Photo 1
1/4

Appartement 2 pièces (41 m²) à louer - Cenon (33150)

AppartementCenon 33150Publié le 2 mars 2026
685 €/mois

Caractéristiques

Pièces

2 pièces

Surface

41 m²

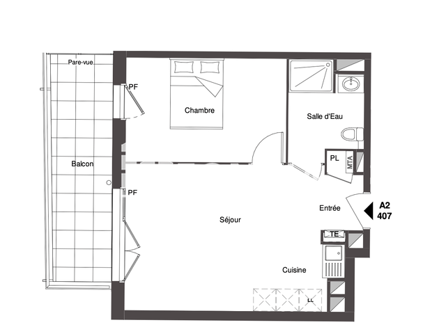
Description

CHAUFFAGE ET EAU CHAUDE INCLUS DANS LE LOYERCenon La Morlette, dans une résidence neuve, au pied du tram A, loue T2 au 4ᵉ étage. Ce logement est composé d'une entrée, d'un séjour donnant sur un grand balcon de 11m2 et d'un coin cuisine équipée et aménagée, d'une chambre donnant également sur le balcon et d'une salle d'eau avec WC.1 place de parking vient compléter ce bien.Logement soumis à la loi pinelN'hésitez pas à déposer votre dossier sur notre site internet Foncia au plus [email protected] 0623954225

Prix du bien
685 €/mois

Informations

Source

Foncia

Publié le

2 mars 2026

Vue pour la dernière fois

il y a 10 heures

Localisation