Casanea logo
Casanea
Photo 1
1/11

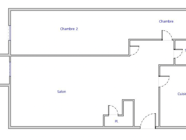
Appartement 4 pièces (66 m²) à louer - Saint Etienne (42000)

AppartementSaint-Étienne 42000Publié le 30 janvier 2026
590 €/mois

Caractéristiques

Pièces

4 pièces

Salles de bain

1

Surface

66 m²

Performance énergétique

DPE

Consommation énergétique

F
A
B
C
D
E
F
G

GES

Émissions de gaz à effet de serre

F
A
B
C
D
E
F
G

Description

SECTEUR MONTPLAISIR, dans copropriété, appartement 4 pièces rénové, au 1ᵉʳ étage, comprenant entrée, séjour avec balcon, cuisine équipée, 2 chambres, salle de bain.chauffage et eaux individuels au gaz.place de parking libre dans la résidence.

Prix du bien
590 €/mois

Informations

Source

Foncia

Publié le

30 janvier 2026

Vue pour la dernière fois

il y a 3 heures

Localisation