Casanea logo
Casanea
Photo 1
1/12

Maison 10 pièces (211.45 m²) à louer - Louveciennes (78430)

MaisonLouveciennes 78430Publié le 17 novembre 2025
3 980 €/mois

Caractéristiques

Pièces

10 pièces

Surface

216 m²

Performance énergétique

DPE

Consommation énergétique

E
A
B
C
D
E
F
G

GES

Émissions de gaz à effet de serre

B
A
B
C
D
E
F
G

Description

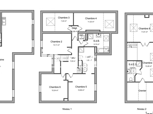
Magnifique maison située dans un quartier résidentiel et calme à Louveciennes.Cette maison de 220 m2 possède un grand séjour très lumineux exposé sud-ouest, 7 chambres dont une chambre parentale avec sa salle de bain privative, 3 salles de bains, une grande terrace avec un beau jardin, un garage et une cuisine équipée d'un frigo et d'un lave vaisselle.A visiter sans plus tarder.

Prix du bien
3 980 €/mois

Informations

Source

Foncia

Publié le

17 novembre 2025

Vue pour la dernière fois

il y a 7 heures

Localisation