Casanea logo
Casanea
Photo 1
1/8

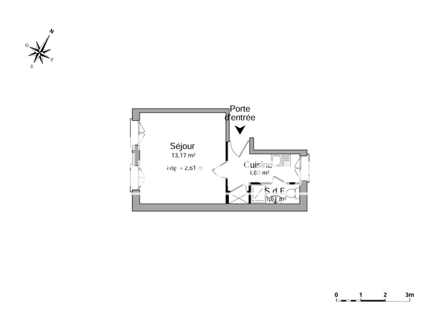
Studio (19.38 m²) à louer - Toulon (83200)

AppartementToulon 83000Publié le 16 décembre 2025
385 €/mois

Caractéristiques

Pièces

1 pièce

Surface

19 m²

Performance énergétique

DPE

Consommation énergétique

D
A
B
C
D
E
F
G

GES

Émissions de gaz à effet de serre

A
A
B
C
D
E
F
G

Description

Au 144 Route de Plaisance à Toulon Ouest, retrouvez dans une un petit immeuble cet appartement T1 au deuxiéme et dernier étage sans ascenseur rénové comprenant une cuisine aménagée et semi-équipée ( plaque,hottes et frigo top), une piéce de vie avec climatisation et une salle d'eau avec WC.le bien dispose du double vitrage Chauffage et eau chaude : individuel électrique

Prix du bien
385 €/mois

Informations

Source

Foncia

Publié le

16 décembre 2025

Vue pour la dernière fois

il y a 10 heures

Localisation