Casanea logo
Casanea
Photo 1
1/10

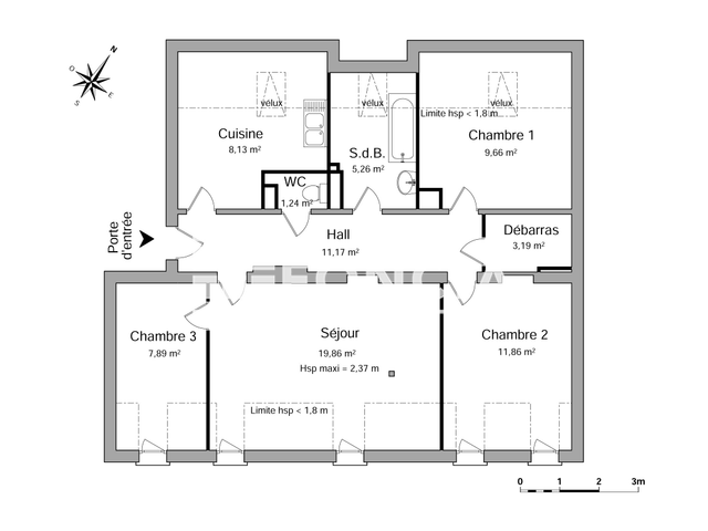
Appartement 4 pièces (78.26 m²) à louer - Strasbourg (67000)

AppartementStrasbourg 67000Publié le 26 juillet 2025
999 €/mois

Caractéristiques

Pièces

4 pièces

Surface

78 m²

Performance énergétique

DPE

Consommation énergétique

C
A
B
C
D
E
F
G

GES

Émissions de gaz à effet de serre

C
A
B
C
D
E
F
G

Description

à proximité des institutions européennes dans un immeuble de style, appartement spacieux et calme, avec cachet - mansarde Entrée, séjour, 3 chambres, cuisine, salle de bains, wc.

Prix du bien
999 €/mois

Informations

Source

Foncia

Publié le

26 juillet 2025

Vue pour la dernière fois

il y a 4 heures

Localisation