
Pièces
2 pièces
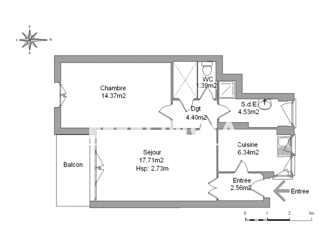
Surface
51 m²
Consommation énergétique
Émissions de gaz à effet de serre
LOCATION 100% EN LIGNE !T2 de 51,3 m² situé au Palais de la Sinse, avenue de la République à Toulon. Appartement de grand volume offrant une magnifique vue sur le port de plaisance. Il se compose d?une entrée, d?un séjour lumineux, d?une chambre, d?une salle de bains et de WC séparés. Terrasse agréable pour profiter de la vue, ainsi qu?un cellier apportant un espace de rangement supplémentaire. Emplacement recherché, à proximité immédiate des commodités et du centre-ville.Chaudière individuelle au gazElectircité individuelleCette location se fera uniquement par le biais de notre nouveau service MA LOCATION FACILE 100% en ligne (dépôt du dossier / visite en ligne / signature du bail à distance).
Source
Foncia
Publié le
12 janvier 2026
Vue pour la dernière fois
il y a 3 heures