Casanea logo
Casanea
Photo 1
1/4

Maison 6 pièces (141.24 m²) à louer - Saint Julien (21490)

MaisonSaint-Julien 21490Publié le 29 septembre 2025
1 490 €/mois

Caractéristiques

Pièces

6 pièces

Surface

141 m²

Performance énergétique

DPE

Consommation énergétique

C
A
B
C
D
E
F
G

GES

Émissions de gaz à effet de serre

C
A
B
C
D
E
F
G

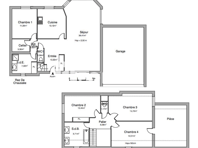
Description

Dans agréable village à 15min de Dijon, belle maison 6 pièces comprenant entrée avec placard, cuisine aménagée, séjour sur terrasse donnant sur jardin, 5 chambres, salle d'eau, salle de bain, 2 wc, cellier, cour, jardin devant et derriere ainsi qu'un garage attenant.

Prix du bien
1 490 €/mois

Informations

Source

Foncia

Publié le

29 septembre 2025

Vue pour la dernière fois

il y a 8 heures

Localisation