Casanea logo
Casanea
Photo 1
1/6

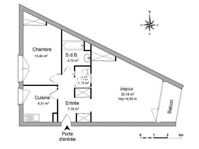
Appartement 2 pièces (55.55 m²) à louer - Limoges (87000)

AppartementLimoges 87100Publié le 18 novembre 2025
582 €/mois

Caractéristiques

Pièces

2 pièces

Salles de bain

1

Surface

55 m²

Performance énergétique

DPE

Consommation énergétique

D
A
B
C
D
E
F
G

GES

Émissions de gaz à effet de serre

B
A
B
C
D
E
F
G

Description

Superbe T2 avec balcon - Aménagement optimal et rangements intégrés !Niché au 3ᵉ étage, cet appartement de type 2 vous accueille par une entrée fonctionnelle dotée d'un placard intégré. Le séjour lumineux s'ouvre sur un agréable balcon, offrant un espace extérieur idéal pour vos moments de détente.La cuisine aménagée et équipée vous permettra de préparer vos repas dans les meilleures conditions. Côté nuit, vous profiterez d'une chambre confortable avec placard intégré pour optimiser l'espace. Une salle de bains et des WC séparés complètent harmonieusement ce bien aux finitions soignées.N'hésitez pas à déposer votre dossier sur notre site internet Foncia au plus vite.

Prix du bien
582 €/mois

Informations

Source

Foncia

Publié le

18 novembre 2025

Vue pour la dernière fois

il y a 10 heures

Localisation