Casanea logo
Casanea
Photo 1
1/9

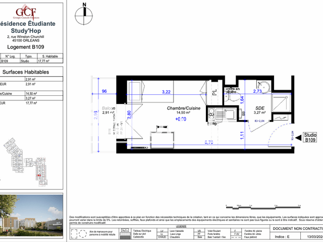
Studio (17.77 m²) à louer - Orleans (45100)

AppartementOrléans 45100Publié le 22 octobre 2025
497 €/mois

Caractéristiques

Pièces

1 pièce

Surface

17 m²

Performance énergétique

DPE

Consommation énergétique

C
A
B
C
D
E
F
G

GES

Émissions de gaz à effet de serre

A
A
B
C
D
E
F
G

Description

Honoraires de location 100% OFFERTS Vous cherchez un logement pratique, confortable et bien situé à Orléans ? STUDY'HOP vous offre bien plus qu?un studio ! À seulement quelques minutes du centre universitaire et de l'hôpital d'Orléans ! Studio meublé et tout équipés de 17,77 m2 avec entrée, séjour (Lit, bureau, rangements), kitchenette aménagée et équipée (réfrigérateur, micro-ondes, plaque de cuisson), salle d'eau avec wc, un balcon. Une place de parking extérieur. Eau chaude et froide incluses dans les charges. Chauffage individuel électrique. Des espaces communs pensés pour vous : Salle commune avec Wi-Fi, laverie, salle de sport, boîte aux lettres connectée pour les colis, conciergerie. Infos et visites : contactez-nous dès maintenant pour découvrir votre futur logement.

Prix du bien
497 €/mois

Informations

Source

Foncia

Publié le

22 octobre 2025

Vue pour la dernière fois

il y a 7 heures

Localisation