Casanea logo
Casanea
Photo 1
1/4

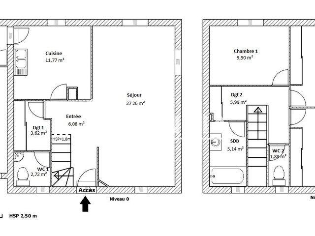
Maison 4 pièces (106.17 m²) à louer - Bourgoin-jallieu (38300)

MaisonBourgoin-Jallieu 38300Publié le 7 janvier 2026
1 150 €/mois

Caractéristiques

Pièces

4 pièces

Surface

106 m²

Performance énergétique

DPE

Consommation énergétique

C
A
B
C
D
E
F
G

GES

Émissions de gaz à effet de serre

C
A
B
C
D
E
F
G

Description

Sur un secteur convoité proche quartier commerçant de CHAMPARET, idéalement situé dans un petit lotissement calme, une maison type 4 sur deux niveaux comprenant une entrée, cuisine aménagée, séjour, trois chambres, salle de bains, wc. Ce logement bénéficie de nombreux rangements, une terrasse, jardin, garage attenant.Le mode de chauffage est une chaudière gaz.

Prix du bien
1 150 €/mois

Informations

Source

Foncia

Publié le

7 janvier 2026

Vue pour la dernière fois

il y a 4 heures

Localisation