
Pièces
1 pièce
Surface
32 m²
Consommation énergétique
Émissions de gaz à effet de serre
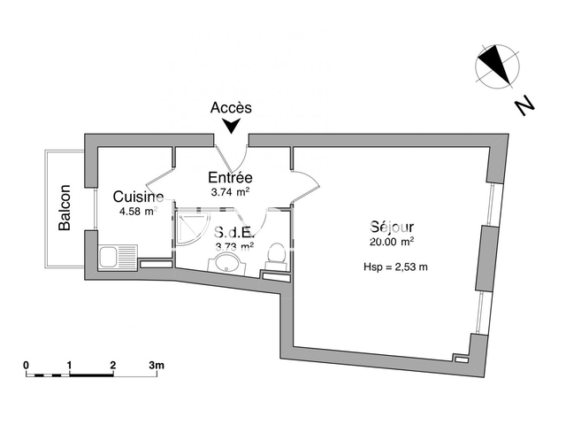
APPARTEMENT EN VISITE VIRTUELLE UNIQUEMENTAu pied du Pantheon bel immeuble ancien avec parquet et balcon sans vis à vis, composé d'entrée avec placard, une pièce principale, une cuisine aménagée, une salle d'eau avec wc.Chauffage et eau chaude en collectif
Source
Foncia
Publié le
3 février 2026
Vue pour la dernière fois
Non disponible