Casanea logo
Casanea
Photo 1
1/4

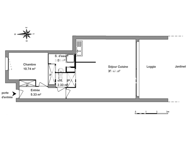
Appartement 2 pièces (51.92 m²) à louer - Montpellier (34080)

AppartementMontpellier 34000Publié le 12 janvier 2026
815 €/mois

Caractéristiques

Pièces

2 pièces

Surface

51 m²

Performance énergétique

DPE

Consommation énergétique

C
A
B
C
D
E
F
G

GES

Émissions de gaz à effet de serre

A
A
B
C
D
E
F
G

Description

Découvrez ce bel appartement de type 2 (lot B303) alliant confort intérieur et espaces extérieurs privilégiés. L'espace de vie principal se compose d'un séjour avec cuisine ouverte donnant accès à une agréable loggia, extension naturelle de votre espace de vie.La partie nuit comprend une chambre confortable, complétée par une salle de bains fonctionnelle et des WC séparés. Le véritable atout de ce bien réside dans son jardin privatif, offrant un espace extérieur rare et précieux pour profiter des beaux jours en toute tranquillité.Ce T2 aux prestations soignées vous séduira par son agencement optimisé et ses espaces extérieurs qui apportent une réelle plus-value à votre quotidien.

Prix du bien
815 €/mois

Informations

Source

Foncia

Publié le

12 janvier 2026

Vue pour la dernière fois

il y a 7 heures

Localisation