Casanea logo
Casanea
Photo 1

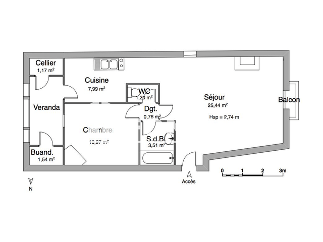
Appartement 2 pièces (58.19 m²) à louer - Bordeaux (33000)

AppartementBordeaux 33000Publié le 19 janvier 2026
800 €/mois

Caractéristiques

Pièces

2 pièces

Surface

52 m²

Performance énergétique

DPE

Consommation énergétique

E
A
B
C
D
E
F
G

GES

Émissions de gaz à effet de serre

C
A
B
C
D
E
F
G

Description

St Genes dans rue calme appartement rénové en 2000 clair et bien distribué -beau séjour chambre au calme - plancher Séjour - cuisine avec placards - coin repas attenant - rangement - 1 chambre

Prix du bien
800 €/mois

Informations

Source

Foncia

Publié le

19 janvier 2026

Vue pour la dernière fois

il y a 10 heures

Localisation