
Pièces
1 pièce
Surface
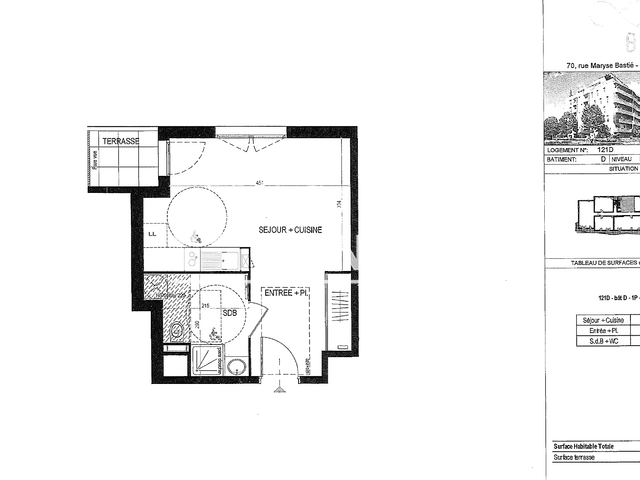
27 m²
Consommation énergétique
Émissions de gaz à effet de serre
VISITE VIRTUELLE UNIQUEMENTDans le 8ᵉ arrondissement de Lyon, secteur MAISON DE LA DANSE / MAIRIE DU 8ᵉ.Nous vous proposons un appartement 1 pièce (loué vide) situé au deuxième étage de la résidence AIRE 8.2, livrée en 2018. Il comprend une entrée avec placard aménagé desservant une pièce de vie avec coin cuisine aménagée et équipée (hotte et plaques de cuisson), une salle d'eau avec douche et WC et un balcon accessible depuis la pièce de vie.Cet appartement est proposé avec un garage fermé en sous sol.Le chauffage et l'eau chaude sont individuels électrique.Le logement est soumis à des conditions de ressources du locataire dans le cadre du dispositif PINEL.
Source
Foncia
Publié le
30 janvier 2026
Vue pour la dernière fois
il y a 11 heures