Casanea logo
Casanea
Photo 1
1/16

Maison 4 pièces (139.47 m²) à louer - Pau (64000)

MaisonPau 64000Publié le 22 janvier 2026
1 231 €/mois

Caractéristiques

Pièces

4 pièces

Surface

139 m²

Performance énergétique

DPE

Consommation énergétique

E
A
B
C
D
E
F
G

GES

Émissions de gaz à effet de serre

E
A
B
C
D
E
F
G

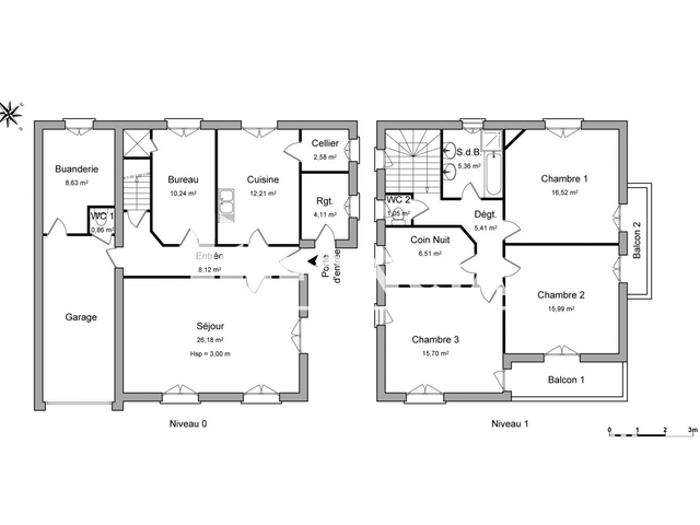
Description

Quartier Saint Dominique, une maison de ville avec son parc arboré: elle est composée au niveau 0 d'une cuisine séparée et de son cellier, d'un grand séjour lumineux, d'un bureau.A l'étage elle dispsoie de 3 grandes chambres , d'un dressing ou bureau, d'une salle de bains.L amasion dispose également d'un garage et d'une buanderie.

Prix du bien
1 231 €/mois

Informations

Source

Foncia

Publié le

22 janvier 2026

Vue pour la dernière fois

il y a 9 heures

Localisation